10 шагов постройки частного дома своими. Шаг 1: Фундамент под каркасный дом
- 10 шагов постройки частного дома своими. Шаг 1: Фундамент под каркасный дом
- Как я построил дом своими руками. Как я строю дом своей мечты.
- Стройка частного дома. Как построить частный дом: 9 главных статей
- Быстро построить дом. Брус, утепленный пенополиуретаном (ППУ)
- Как построить быстро и недорого дом. Варианты технологий и материалов: плюсы и минусы выбора
- Строительство одноэтажного дома своими руками. Проекты одноэтажных домов
10 шагов постройки частного дома своими. Шаг 1: Фундамент под каркасный дом
Выбор фундамента — это отдельная сложная и объемная тема. Учитывается геологическая картина на участке, высота расположения подземных вод, вес здания и сезонность проживания в нем, регион, в котором происходит строительство, снеговые и ветровые нагрузки. Но в общем и целом, под каркасники делают чаще всего свайный, свайно-ростверковый или ленточный фундаменты.
В нашей стране пальма первенства при каркасном домостроении своими руками принадлежит свайно-ростверковому фундаменту. Он быстро строится, требует небольших материальных вложений, правильно рассчитанный и построенный, он надежен. Сочетая в себе преимущества и свайного и ленточного, он равномерно передает нагрузку всем опорам.
Более надежными при строительстве свайного или свайно-ростверкового фундамента являются сваи ТИСЭ. За счет расширенной пятки они имеют большую несущую способность и лучше сопротивляются силам пучения.
Устройство свайно-ростверкового фундамента со сваями ТИСЭ
Бурить скважины под сваи можно ручным буром или моторизованным. В качестве опабулки используют свернутый в трубы нужного диаметра рубероид (должно быть навернуто не менее трех слоев), закрепленный при помощи скотча. Другие варианты — асбестоцементные или ПВХ трубы подходящего диаметра. Внутрь свай устанавливают три-четыре прута арматуры, связанных между собой в виде треугольника или квадрата. Пруты арматуры нарезаются так, чтобы над поверхностью сваи торчало не менее 0,7-0,8 метра. Заливается все бетоном марки не ниже М25 (о марках бетона читайте тут).
После заливки свай устанавливается опалубка для ленты (ростверка), в нее укладывается и вяжется арматура. Продольные прутки соединяются с загнутыми выпусками арматуры из свай. На этом этапе в ленте оставляют отверстия для подвода коммуникаций и вентиляции (вставляйте отрезки пластиковых труб поперек ленты).
К ленте фундамента впоследствии будет крепиться обвязочный брус. Для его монтажа в ленте закрепляются шпильки. Устанавливаются они с шагом 1-2 метра. От каждого угла в обе стороны отступают по 30 см. Тут шпильки обязательны, остальные в зависимости от габаритов дома, но не реже чем через 2 метра. Учтите, что именно шпильки связывают каркас дома с фундаментом. Потому лучше поставить чаще. И еще: какой бы короткой не была стена, шпилек должно быть не меньше двух.
Когда все готово, заливается бетон.
Залитый ростверк. Фундамент под каркасный дом своими руками готов
После заливки бетона, чтобы он не сох, а набирал крепости, его лучше укрыть полиэтиленом (смотрите на фото). Если температура после заливки фундамента держится в пределах +20°C, примерно через 3-5 дней можно продолжать строительство. За это время при таких условиях бетон наберет более 50% своей прочности. С ним можно работать свободно. При понижении температуры срок значительно возрастает. Так при +17°C ждать нужно уже около 10 дней.
Как я построил дом своими руками. Как я строю дом своей мечты.
Настало время и мне немного поделиться своим опытом.
Я с супругой долгое время жил в загородном доме в удалении от города, когда семья стала расти поняли, что жилплощади явно не хватает и нужна цивилизация. Переезжать в квартиру в город мы изначально были не согласны, пожив в своем доме сложно загнать себя в 4 стены. Был еще один нюанс, в месте где мы живем сейчас вид на поля, леса и всего один замечательный сосед. Поэтому к новому участку были конечно же завышенные требования: цивилизация, комфорт, охрана, близость парков, лесов и отсутствие соседей! Надо сказать, что свой идеальный участок мы искали несколько лет, бесконечные просмотры, разочарования, но мы его нашли!!! Участок в коттеджном поселке, с идеальными дорогами, охраной, один сосед в отдалении ну и конечно находится в тупиковой зоне (можно не беспокоится, что кто-то будет носится и шуметь). Бонусом нам достался пятигранный участок, а значит он точно будет не как у всех и на нем можно сделать реально что-то интересное!
По своей натуре я люблю подходить к решению вопросов нестандартным путем и с использованием последних тенденций и новаторств, поэтому и дизайн дома выбран в стиле хайтек и урбанизм (никакого дерева и «дорого богато»). А проект нашего идеального дома мы рисовали год, потому что продумать все хотелки и уместить их в одном пространстве оказалось не просто! Но об этом я расскажу позже в своих постах, когда дойдем до этого!
Первым этапом нужно было оценить масштаб нового дома - пока мы искали участок нас стало уже 4, плюс у нас огромное количество родственников, с которыми мы очень дружны и собираемся практически каждые выходные и вместе отдыхаем в отпусках. По нашим подсчетам дом получался не менее 400 кв.м., а это значит нужно сразу очень много денег и очень много времени, а нам уже не терпелось переехать! Мы приняли решение построить 2 дома: 1 дом - небольшой гостевой, около 80 кв.м. и переехать в него и второй дом - основной на 300 кв.м. (который как раз будет строится под постоянным контролем).
Маленькое отступление, у меня своя организация по прокладке коммуникаций, много лет назад я начинал с частных домов, сейчас работаю только с большими стройками: заводы, производства, многоэтажные дома и т.д. поэтому я как никто знаю, что если ты хочешь построить что-то хорошо ты должен жить на этой стройке и сам все контролировать!
Поэтому решился написать серию постов, где поэтапно расскажу, как, что и почему. Надеюсь мой опыт поможет вам максимально избежать ошибок в этом непростом, но очень интересном деле!
Ну поехали!
Первый пост я посвящу подготовительным работам и неожиданностям, которые всплыли по весне.
Итак, первым делом я вызвал геодезиста, потому что участок то я купил зимой и не видел что тут происходит весной…А весной участок превратился в болото с лягушками и прочей живностью в камышах.
Геодезист мне сообщил, что участок находится ниже подъездной дороги примерно на 200мм в среднем, поэтому было принято решение поднимать весь участок, примерно на 400 мм.
Вот так это выглядело весной:



Так же я изучил старые карты Гугл со спутников и был неприятно удивлен тому факту, что 10 лет назад на месте моего участка был пруд. Грунт соответственно оказался насыпной, преимущественно глина с редкими включениями строительного мусора, такого, как бетонные обломки плит.
Это не очень хорошо, но все решаемо, при выборе фундамента этот факт нужно будет учесть.
Следующим этапом заказали проект ландшафтного дизайна. Мы не садоводы раз, времени никогда не хватает два, накосившись 15 соток газона на текущем участке три, по проекту предполагается широкая выездная группа, дорожки, широкие веранды у обоих домов, и много растений которые практически не требуют ни какого вмешательства в их жизнь
И вот что у нас получилось:

Далее были завезены дорожные плиты размером 3*1.75 м в количестве 26 штук, а так же ж/б кольца для прокладки коммуникаций (водопровод и канализация). По границе участка так же проходит газопровод и электричество 3фазы 15 киловат на участок.

В следующем посте я расскажу о планировке участка и монтаже УШП - утепленная шведская плита! До встречи!
Стройка частного дома. Как построить частный дом: 9 главных статей
Построить свой дом — это трудоемкий и сложный процесс. И даже если вашей стройкой руководит прораб, неплохо и самому разбираться в нюансах. Мы собрали самые важные статьи о разных этапах строительства — сохраняйте в закладки, чтобы не потерять.
Электричество
Электричество необходимо не только для жизни, но и для строительства дома. Поэтому среди всех коммуникаций его подключают в первую очередь. Рассказываем, какие есть требования к электрификации и сколько это стоит
Как подключить электричество
Газ
Зимой в России не прожить без отопления. Наиболее популярный и бюджетный способ обогревать дом — с помощью магистрального газа. В статье — о том, какие есть программы газификации, виды газопроводов и требования к подключению
Как подключить газ
Вода
Для стабильного водоснабжения на участке организуют колодец или скважину. Затем воду в дом подают с помощью насоса, а специальное реле позволяет контролировать давление в трубопроводе
Как пробурить скважину
Канализация
Бытовые стоки из дома выводят в септик — емкость, которая закопана на участке. Там отходы очищаются под действием анаэробных бактерий. Еще бывают аэрационные станции, где бактерии подпитываются кислородом для более эффективной очистки
Как выбрать канализацию
Стяжка
Это бетонный слой более 2 см толщиной, на который укладывают линолеум или ламинат. Часто в стяжку закладывают коммуникации, например водопроводные трубы, электрические кабели, трубы теплого пола
Как сделать стяжку
Система отопления
Отапливать дом можно разными способами, например нагревать воду газовым или дровяным котлом и подавать ее в батареи или в систему теплых полов. Еще есть электрические конвекторы, камины и возобновляемые источники энергии
Как сделать отопление
Стены
Грамотное утепление снижает теплопотери дома, а значит, и расходы на отопление. При этом утеплитель и «пирог» стены нужно рассчитать так, чтобы в конструкции не появлялся конденсат
Как утеплить дом
Камин или печь-камин
Камин в доме несет эстетическую функцию, но еще с его помощью можно отапливать дом или согревать воду. Бывают открытые камины, с закрытой топкой, печи-камины и разные виды дымоходов
Как сделать камин в частном доме
Молниезащита
Нужна, чтобы избежать пожара или поломки бытовой техники из-за удара молнии. Ее можно организовать двумя способами: сделать своими руками или купить готовую
Как установить молниезащиту
Больше о загородных домах
В нашем одноименном потоке. Рассказываем, как выбрать участок, построить и обустроить дачу или дом и жить там с комфортом
Читать статьи
Еще статьи, которые пригодятся тем, кто строит дом:
Новости, которые касаются всех, — в нашем телеграм-канале. Подписывайтесь, чтобы быть в курсе происходящего: @tinkoffjournal.
Быстро построить дом. Брус, утепленный пенополиуретаном (ППУ)

Впрочем, быстровозводимый деревянный дом может быть энергоэффективным, если его построить из утепленного бруса ППУ. Его производство начинается с заготовки пиломатериалов из хвойных пород дерева. Сырые необрезные доски помещают в сушильные камеры, в которых при температуре до 65°С происходит мягкая сушка древесины до достижения ею остаточной влажности 10–12%. После этого доски обрабатывают на специальных станках, где они превращаются в ламели и вставки заданных размеров. Из полученных деталей собирают каркас бруса ППУ: две ламели соединяют между собой на расстоянии 70 мм одна от другой вставками, расположенными с интервалом 0,5 м, при помощи замка «ласточкин хвост». Таким образом достигается прочность конструкции.
Затем изделия помещают на ленту транспортера, и экструзионная машина заполняет их полости вспененным пенополиуретаном. Застывая, он образует плотную сухую массу и прочно приклеивается к стенкам каркаса. Далее полученную заготовку профилируют на четырехстороннем строгальном станке, в результате чего на верхней и нижней сторонах готового бруса появляются шипы и пазы. Интересно, что профиль у бруса ППУ выполнен таким образом, чтобы при укладке венцов не нужно было прокладывать между ними утеплитель. При сборке дома сначала соединяются заполненные пенополиуретаном части брусьев (пенополиуретан слегка выступает над поверхностью бруса), и только при дальнейшей вертикальной нагрузке стыкуются их профилированные части. Сжатый под усилием пенополиуретан исключает продувание между венцами.
Если обычный профилированный брус доставляют на стройплощадку в виде простого набора брусьев одной длины, то брусья ППУ приходят в виде «конструктора»
На заводе в соответствии с проектными чертежами изготавливают все детали будущего дома. На станках делают венцовые чашки угловых соединений, торцевые прорези под закладку оконных брусков и дверных блоков, а также сверлят отверстия под стальные стяжки.
Из плюсов данной технологии стоит отметить, что пенополиуретан, находящийся между брусьями, не подвержен воздействию грызунов, гниению. Стены из утепленного профилированного бруса не растрескиваются и обладают минимальной усадкой — в пределах 1%. Дом не нуждается в дополнительном утеплении, так что и внутри, и снаружи стеновой материал остается на виду, что особенно ценят приверженцы деревянного домостроения. Брусья гладко отшлифованы на заводе, их нужно только затонировать в выбранный цвет. Ну а для особо взыскательных заказчиков брус ППУ с внутренней стороны может быть изготовлен из древесины кедра.
Как построить быстро и недорого дом. Варианты технологий и материалов: плюсы и минусы выбора
Размышляя, как построить дом дешево и быстро, ориентируются на деревянные постройки эконом-класса. Для них характерным будет брус 20 см, утеплитель 10 см, штукатурка 2 см. Это – дешевые материалы для строительства, теплоизоляция которых будет значительно ниже кирпичной кладки. Стоимость составит около 2 тыс. руб. за 1 м². За деревянный дом эконом-класса подрядчик запросит приблизительно столько же из расчета общих габаритов здания.
Помните, что чем шире стена, тем надежнее возводится фундамент, цена тоже увеличивается.
Постройка из бруса
Жилье из бревна — это довольно дорогой вариант. Такие здания отличаются экологичностью, эстетической привлекательностью.
Погреб в частном доме своими руками
Быстро возводят конструкции из кирпича. На 1 м² понадобится около 250 шт. кирпича, опорный пояс из железобетона, раствор для кладки и штукатурка. Стоимость будет чуть больше, чем у бруса, на 300-400 рублей. Зато за работу при этой технологии обычно берут не более 50% от стоимости материала. Но однослойные стены придется в будущем утеплять. Толщина кладки рассчитывается в зависимости от ширины фундамента. Хорошие теплоизоляционные параметры у построек по технологии кладки в 2 кирпича. Ознакомиться с расчетом кирпича на строение можно в данной статье.
Жилье из кирпича
Проект из шлакоблока эконом-класса позволит существенно сэкономить, а на выходе получится легкая конструкцию с высокой пожаробезопасностью и отличной шумоизоляцией. Продумать коммуникации, электропроводку необходимо заранее. Для возведения стен понадобятся:
- газоблоки,
- клей для укладки,
- анкер железобетонный, сетка,
- пояс опорный,
- колонны монолитного каркаса,
- штукатурка.
1 м² постройки обойдется около 2 т. р., а за работу запросят до полутора тысяч. Плюсы очевидны:
- быстрая постройка,
- отсутствие проблем с насекомыми и грызунами (они не переносят этот холодный материал).
Легкость материала позволяет возводить конструкции вне зависимости от состава грунта, сэкономить на толщине фундамента.
Помимо внутренней отделки понадобится внешняя. Также материал обладает влагопоглощающими свойствами.
Не так давно на рынке появились сендвич-панели. Их используют для недорогих быстровозводимых построек. Цена зданий снижается ввиду невысокой стоимости самих панелей, простоты работы с этим материалом. Приобретают так называемый домокомплект и собрать здание можно как конструктор. Но предстоит серьезная дополнительная обработка стен. Преимуществами этих строений считают сейсмоустойчивость, морозостойкость (обычно используется утеплитель толщиной около 50 см). Их активно применяют в Японии, Канаде.
Из каких блоков дешевле построить дом? Если вы задались таким вопросом, то рассмотрите вариант жилья из сип-панелей.
За 1 м² сип-панелей придется выложить до 1000 рублей, но внешняя отделка обойдется в такую же стоимость.
Постройка из SIP-панелей
Даже если не учитывать стоимость одного метра, для установки бетонных панельных зданий понадобится привлечение серьезной техники, профессиональных строительных бригад. А постройки из сэндвич-панелей хотя бы частично можно монтировать самостоятельно.
Строительство одноэтажного дома своими руками. Проекты одноэтажных домов
Одним из преимуществ строительства нового дома является то, что вы можете начать с нуля с плана этажа. Новый план дома — это ваша возможность создать то, что идеально подходит для вашей семьи и образа жизни. Мы собрали для вас современные проекты одноэтажных домов бесплатно с чертежами и фотографиями.
Топ 10 проектов одноэтажных домов
1. Проект небольшого современного дома 60 м² для небольшой семьи.
Этот небольшой современный дом идеально подходит для небольшой семьи. Он имеет две спальни стандартного размера и общий туалет и ванну.
Небольшой современный дом общей площадью 60 м² может быть построен на участке площадью 164 кв.м. с шириной 11,5 метра и глубиной 14,3 метра.
Несмотря на то, что это небольшой дом, в его дизайне используются простые, но современные элементы. Он окрашен в оттенки оранжевого и белого, что придает ему более свежий и современный вид. В этом небольшом современном доме с акцентными стенами из кирпича.
Крыша, покрытая длинным пролетом из оцинкованного железа, отделана под черепицу.
В этой конструкции дома две спальни. Напротив гостиной находится большая спальня, которая может быть преобразована в главную спальню. Другая спальня меньшего размера расположена напротив обеденной зоны. Во всех спальнях есть встроенные шкафы.
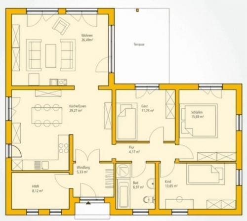
2. Проект практичного одноэтажного дома в классическом стиле с террасой площадью 142 м²
Подробнее об этом проекте здесь .
3. Проект одноэтажного дома из кирпича площадью 100 м²
4. Проект одноэтажного дома с тремя спальнями площадью 121,5 м²

5. Проект одноэтажного дома с тремя спальнями и гаражом
6. Проект одноэтажного дома с четырьмя спальнями
7. Проект одноэтажного дома площадью 136 м²
8. Проект одноэтажного оригинального дома площадью 183 м²
9. Проект одноэтажного дома площадью 142 м²
10. Проект одноэтажного дачного дома с верандой
Проекты одноэтажных домов с гаражом: чертежи и фото
Обеспечить свой машине защиту — это обязанность каждого ответственного автолюбителя. Часто получается так, что хозяева начинают строить дом, и лишь после этого осознают, что место для машины не предусмотрено. Ставить её за воротами небезопасно и непрактично. Гараж может быть как отапливаемым, так и неотапливаемым, но он убережет автомобиль от перепадов температуры, града, веток и преступников.
