Как построить летний душ своими.. Материалы для летнего душа
- Как построить летний душ своими.. Материалы для летнего душа
- Летний душ из металлопрофиля своими руками. Варианты и чертежи летнего душа из металлопрофиля для дачи
- Летний душ своими руками из металла. Основные этапы монтажа летних душевых и часто используемые материалы
- Летний душ своими руками из дерева чертежи. Проекты, чертежи и размеры летнего душа из дерева
- Летний душ своими руками: чертежи. Летний душ: чертежи, размеры, фото
- Бюджетный летний душ своими руками. Этапы строительства летнего душа
- Как построить летний душ из кирпича. Душ из кирпича своими руками – технология строительства
Как построить летний душ своими.. Материалы для летнего душа
В зависимости от бюджета и потребностей для постройки душа может быть выбран практически любой строительный материал, предназначенный для использования на открытом воздухе. Это может быть каркасное, блочное сооружение или постройка из дерева, кирпича, камня.

Для сборки каркаса чаще всего используется металлический профиль или трубы. Кабинку можно собрать самостоятельно при помощи болгарки и сварочного аппарата, используя для облицовки ПВХ пленку, брезент, профилированные листы и панели из пластика.
В моем идеально варианте, сделать трехэтажный дом, последний из этажей был бы мансардой. При этом дом бы был не малым и вширь, чтобы вместить в себе достаточно помещений как технических и хозяйственных, так и спален и мест для отдыха, в том числе мастерскую и зимний сад. Да и на перспективу сам гараж в доме, должен быть большим, на две машины + место для разных вещей. Согласитесь, такой дом можно поместит на 6 стандартных сотках, однако это будет дом, но без сада и уютно придомовой территории.



Смотрите
Душевые из этих материалов можно приобрести и в готовом виде. Как правило, они бывают снабжены баками вместимостью 200 литров, есть модели летнего душа с подогревом воды и раздевалкой. Диапазон цен (на российском рынке — 15-30 тыс. рублей) обусловлен в первую очередь материалами облицовки.

Преимущество покупки готового летнего душа: профессионально выверенные габариты строения, адекватный подбор крепежей и влагостойкость облицовки.

Другой вариант заводского изготовления – пластиковые души с неразборными закрытыми кабинами, со встроенной мойкой, совмещенной раздевалкой и электрическим водонагревателем.

Летний душ из металлопрофиля своими руками. Варианты и чертежи летнего душа из металлопрофиля для дачи
Перед началом работ по строительству летнего душа из профнастила изучают варианты конструкций по фото и делают чертеж на бумаге. На эскиз наносят основные размеры конструкции. В дальнейшем производят расчет для заготовки материала.

Каркас для летнего душа делают из металлического профиля или деревянного бруса
Душевую делают с раздевалкой или без нее. В первом случае конструкция получится в два раза больше, чем во втором. На крышу устанавливают бак для сбора воды. Емкость для летнего душа может быть изготовлена из металла или пластика.

Чтобы надежно закрепить бак на крыше, делают обрешетку из металлического профиля
Летний душ также обустраивают в хозблоке. Рядом располагают туалет и сарай для садового инвентаря. Некоторые дачники хотят избежать неприятного запаха, который источает туалет, поэтому строят отдельно стоящую душевую.

Оптимальный размер постройки с раздевалкой — высота 2 м, ширина 1 м и длина 2 м
Летний душ с раздевалкой разделяют при помощи второй двери или шторкой для ванной комнаты. В предбаннике устанавливают лавочку и крепят вешалки для чистой и грязной одежды, а также полотенец.

Для оттока воды выкапывают сливную яму

Пол в летнем душе из профнастила бетонируют, устанавливают сифон для стока
При планировании учитывают габариты всех членов семьи и друзей, которые будут посещать дачу. Для определения удобной высоты измеряют рост самого высокого родственника с вытянутыми вверх руками.
Чтобы удобно было стоять на полу, в кабинке обустраивают деревянную решетку
Если летний душ из профнастила будет обогреваться, продумывают возможность установки поддона. В данном случае габариты просчитывают, исходя из размеров упомянутого выше элемента.

Форма летнего душа из профнастила может быть квадратной, прямоугольной или круглой
На этапе проектирования принимают во внимание размер материала. Листы профнастила продают стандартной высотой 2000 мм, шириной 1005—1205 мм. При этом, просчитывая необходимое количество материала по ширине, учитывают нахлест листов, принимая во внимание показатель – рабочая ширина, который указывает производитель профнастила.
Летний душ своими руками из металла. Основные этапы монтажа летних душевых и часто используемые материалы
Построить летний душ на даче своими руками можно, используя различные подручные материалы, оставшиеся от строительства домика, сарая, забора или теплицы. Размеры душевой кабинки каждый может определить исходя из роста самого высокого члена семьи, а в ширину сделать его таким, насколько позволит площадь или количество материала. Предварительно следует нарисовать чертеж с указанием всех размеров.

Затем важно подготовить площадь, очистить ее от мусора и растений, разметить периметр будущей конструкции.
Основные этапы:
- Если по задумке потребуется сливная яма, то ее нужно выкопать по ширине чуть менее площади душевой, а в глубину будет достаточно 80 см. Чтобы яма не осыпалась, можно сделать каркас, вбить по углам бруски и сделать стяжку из реек.
- Затем укладывают пол.
- Следующий этап – монтаж каркаса. Его можно изготовить из металла или дерева. Затем следует обшивка и установка каркаса.
- После монтируют резервуар для воды сверху конструкции и подводят шланг с лейкой.
- Если есть возможность и желание, можно оборудовать душевую внутри лавочкой, полочками.


Общий принцип работы обычно включает все эти этапы, но могут быть различные нюансы, в зависимости от варианта конструкции. Подробные описания работы и фото разных душевых представлены далее.
Душевая из металлической трубы с 2 секциями
Летний душ с дополнительной раздевалкой можно построить на даче своими руками из подручных материалов за несколько дней. Эта кабинка имеет общие размеры 1 на 2 м.

Для работы над ним будут нужны:
- металлические профильные трубы 15 на 15 мм в длину 6 м и 20 на 40 мм для каркаса;
- металлический поддон;
- бак для воды;
- любой материал для отделки (сотовый поликарбонат, полиэтилен, рейка).
Для удобства предварительно можно сделать чертеж и указать все размеры. Начинать нужно с каркаса:
- Нарезать 6 заготовок на вертикальные стойки по 210 см из трубы 15 на 15 мм. Их нужно будет сварить.
- Нарезать поперечные перекладины из профиля 20 на 40 и уголки. Поперечные перекладины нужно прикрутить к вертикальным стойкам на уголки.
- Каркас следует покрыть акриловой водостойкой краской.

Когда каркас готов, и выбрано место для установки, следует вырыть яму для слива и вмонтировать конструкцию с поддоном внизу и баком наверху.
После следуют только отделочные работы. Пол можно выложить рейкой.
Стены и крышу можно оформить любым материалом, который есть под рукой:
- рейкой;
- сотовым поликарбонатом;
- профнастилом;
- плотным полиэтиленовым тентом.
В предбаннике можно закрепить несколько крючков для полотенец и одежды, а в самой душевой сделать небольшие полочки для мыла.
Летний душ своими руками из дерева чертежи. Проекты, чертежи и размеры летнего душа из дерева
Перед началом строительства подбирают проект и делают чертеж. На эскизе указывают точное расстояние от построек, деревьев и кустарников, наносят параметры конструкции.

Конструкцию делят на два вида: с раздевалкой или без нее
При планировании учитывают рельеф местности, высоту грунтовых вод и расположение построек на участке. Если есть подземные ручьи, обустраивают дренажную систему для стока вод и приподнимают конструкцию, чтобы основание не соприкасалось с водой, а деревянная душевая не подверглась гниению.

При необходимости обустраивают ленточный фундамент, но достаточно и столбчатого
Если душ наполняют из центрального водоснабжения, предусматривают способы набора воды в бак. Кабинку располагают подальше от огорода, т. к. стоки не полезны для развития растений, что может привести к их загниванию.
Чтобы вечером было комфортным принятие водных процедур, подводят электричество. Альтернативой могут стать аккумуляторные фонари или светильники на солнечных батареях.

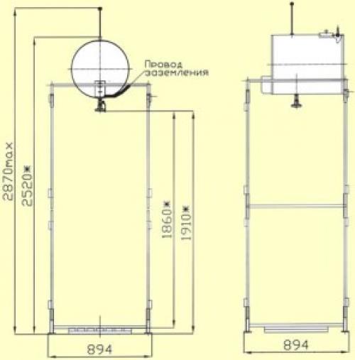
Идеальным параметром душевой кабины считают высоту 2-2,5 м, длину 1 м, ширину 1 м
Чтобы вода лучше прогревалась, душ располагают на солнечной стороне участка. Расположение кабинки у забора поможет снизить парусность и продлит срок службы конструкции.
Поддон для летнего душа из дерева также делают своими руками. В этом случае не придется подгонять каркас под слив. Напротив, конструкция будет учитывать габариты всех домочадцев, а проект будет индивидуальным.
Летний душ своими руками: чертежи. Летний душ: чертежи, размеры, фото
Как сделать летний душ быстро и дешево? Нет ничего проще, в этой статье мы рассмотрим мастер-класс как построить летний душ своими руками из подручных материалов и в кратчайшие сроки.
В дополнение будет предоставлены чертежи летнего душа с размерами и конечно с пошаговыми фото.
Если вы стали счастливым обладателем дачного участка, то вас конечно заинтересует вопрос как самому сделать летний душ, ведь работая на участке в летний зной, так и хочется освежиться под тёплой водой из душа.
Чертежи и размеры летнего душа.
На рисунках представлены чертежи, схемы и размеры летнего душа, поскольку это простая конструкция большая точность тут не требуется, поэтому размеры душа можно взять на своё усмотрение.


Схема душа.

Собираем нужные материалы и приступаем к постройке.
Из материалов нам понадобится:
Бак для воды.

Бак необходим для нагрева воды на солнце, если брать воду сразу из под дачного водопровода или из скважины, то понятное дело что вода будет холодная и для душа её сразу использовать нельзя, нужно подогреть. Поэтому понадобится ёмкость, не стоит покупать слишком большой бак, вода в нём будет долго нагреваться, да и конструкция под большой бак понадобится капитальная, а нам нужен простой и практичный душ.
Бак может быть прямоугольным или в форме бочки, принципиальной разницы нет, но чем уже по высоте будет бак, тем быстрее в нём будет прогреваться вода.
Оптимальный вариант бак на 100 литров, воды из бака будет достаточно для семьи и вода будет быстро нагреваться на солнце.
Кран и лейка для душа.
Можно приобрести бак с уже вмонтированным краном, вам только останется прикрутить лейку для душа. Но кран вмонтировать можно и самостоятельно, для этого достаточно приобрести в любом строительном магазине готовый комплект крана с лейкой который показан на фото.

Ещё нам понадобятся пиломатериалы: брус сечением 100 х 100 или 70 х 100 мм, и любая доска для обшивки каркаса душевой кабины.
Когда все материалы будут в наличии можно приступать к изготовлению.
Как сделать летний душ: пошаговое изготовление.
Выбираем место на участке под душ, поскольку вода в баке для душа нагревается от солнца, то логично расположить постройку на солнечном месте, даже лёгкая тень деревьев или построек значительно, снижает нагрев воды в баке, учитывайте это при планировке места под летний душ.
Теперь нам нужно определиться со сливом воды, здесь есть два варианта либо строить рядом с душем канализацию, либо поступить следующим образом.
На месте нашего будущего душа выкапываем яму метр на метр и глубиной около полуметра, и засыпаем её щебнем.

Вода, попадая на щебень будет впитываться значительно быстрей чем в обычную почву, таким образом можно сделать простую дренажную яму под слив для воды из душа.
На щебень устанавливаем четыре шлакобетонных блока которые будут служить опорным фундаментом и создадут проём под душевой кабиной.
Следующий этап – строительство каркаса для летнего душа.
Делаем нижнюю обвязку размер — 1 х 1 м.


Опоры изготовим из бруса.

Верхняя обвязка каркаса, устанавливаем дополнительные балки под бак.

Теперь каркас летнего душа обшиваем любым доступным материалом, это может быть обрезная доска, вагонка или фальш брус. Между досками оставляем зазор 3 мм, при намокании древесина может расширяться.


Каркас кабины укрываем куском листового шифера, сделаем отверстие под кран бака.

Теперь нам нужно установить бак для воды и подключить кран и душевую лейку.


Бюджетный летний душ своими руками. Этапы строительства летнего душа
План составлен, закуплены все необходимые материалы и выбрано идеальное место? Можно приступать к увлекательному и захватывающему занятию – строительству собственного душа.
Его выполняют в следующей последовательности:
- обустраивают слив
- сваривают металлический каркас
- обшивают стены
- устанавливают двери
- при необходимости обустраивают внутреннее помещение
Остановимся подробнее на каждом этапе.
Слив для душа

Устройство дренажной ямы для слива использованной воды
При активной эксплуатации душа потребуется надежный слив. О его устройстве необходимо подумать на этапе планирования.
Для слива воды организовывают:
Идеальным вариантом для отвода воды на даче является дренажная яма. Ее можно выкопать прямо под душем или невдалеке от него.
Размеры сливной ямы зависят от личных предпочтений, особенностей душа и количества активных пользователей.
Ее литраж должен быть в два раза больше объема бака для душа. Это позволит в процессе эксплуатации избежать переполнения сливной ямы использованной водой.

Старые колеса предотвратят преждевременное осыпание дренажной ямы
Чтобы избежать осыпания, стенки дренажной ямы укрепляют листовым металлом, кирпичами, доской или отслужившими свой век колесами. Яму засыпают крупным гравием, сверху укладывают слой песка и слегка утрамбовывают.
Фундамент

Монтаж кабинки без фундамента
На дачных участках довольно часто практикуют монтаж душа без капитального фундамента . При установке временных построек такой вариант вполне допустим. В качестве основы для душа в таком случае служит установленный по углам шлакоблок или кирпичи.
В результате сильных ветров душевая кабина может опрокинуться. Предотвратить падение поможет вкапывание боковых стоек в грунт. При желании стойки можно забетонировать.
Металлический каркас

Профильная труба с квадратным сечением отлично подходит для изготовления каркаса
Самым простым вариантом является строительство душа по каркасной технологии. Работы проводят в следующей последовательности:
1
Стойки изготавливают из профильной стальной трубы с квадратным или прямоугольным сечением размерами не менее 40х40 мм. Для изготовления каркаса потребуется четыре основные стойки и одна дополнительная для установки двери.
2
В качестве надежного соединения стоек между собой используют горизонтальные перемычки, изготовленные из той же профильной трубы. Перемычки устанавливают снизу, сверху и посередине конструкции.
При изготовлении каркаса необходимо учитывать размеры бака и предусмотреть на крыше горизонтальные перекладины в соответствии с его размерами.
Как построить летний душ из кирпича. Душ из кирпича своими руками – технология строительства
Вариантов строительства дачного душа существует много, однако, если вы хотите иметь на своем участке конструкцию, которая сможет прослужить многие годы, то возводить ее нужно из кирпича. Данная задача не такая уж сложная, однако, прежде чем приступить к этой работе, обязательно надо ознакомиться с основными ее нюансами. Чтобы помочь в этом вопросе, ниже мы подробно рассмотрим, как построить душ на даче из кирпича.
Кирпичная душевая кабинка
Порядок строительство душа
Возведение душевой кабины осуществляется поэтапно и включает в себя следующие действия:
- Подготовка проекта;
- Выбор места;
- Обустройство сливной ямы;
- Подготовка основания;
- Возведение стен;
- Обустройство кабинки.
Ниже подробно ознакомимся со всеми этими этапами.
Пример – надворный туалет с душем из кирпича
Подготовка проекта
Перед тем как построить душ из кирпича, необходимо выполнить проект.
Чтобы его составить, нужно определиться со следующими моментами будущего строения:
- Конфигурацией – можно построить туалет и душ из кирпича под одной крышей либо возвести одиночную кабинку.
- Размерами конструкции – касается высоты, площади помещения и пр.
- Дизайном – красивый кирпичный туалет и душ могут не только обеспечить комфорт пребывания на даче, но и стать украшением всего участка.
Определившись с основными параметрами будущей постройки, желательно изобразить ее на бумаге. Это позволит рассчитать количество стройматериалов, соответственно, заранее будет известна цена проекта. Кроме того, схематическое изображение конструкции с указанием размеров позволит избежать ошибок в процессе строительства.
Чаще всего душевые кабины строят высотой в 2,5 м с длиной стенок -1 м, т.е. душевой поддон из кирпича имеет площадь 1м2. Однако, по желанию эти размеры можно изменить, к примеру, чтобы оборудовать душ раздевалкой.
Выбор места
После подготовки проекта необходимо выбрать подходящее место для строительства.
Следует отметить, что к площадке предъявляются некоторые требования:
- Кабинка должна располагаться в приемлемой близости от дома.
- Желательно, чтобы площадка хорошо освещалась солнцем, т.е. не была затененной.
- Расстояние от душа и сливной ямы до колодца должно составлять не менее 8 метров.
Кроме того, в идеале площадка должна быть ровной, чтобы не тратить силы на дополнительные земельные работы.
Котлован для сливной ямы
Обустройство сливной ямы
Как правило, яма выполняется за душевой кабиной на расстоянии полтора-два метра от нее. Размеры котлована зависят исключительно от предполагаемой интенсивности использования душевой кабины.
Вариантов обустройства ямы существует довольно много, но, раз уж запланировано строить летний душ из кирпича, яму тоже лучше сделать капительной. Для этого стенки котлована надо обложить кирпичом или даже залить бетоном. Дно ямы следует засыпать песком и щебнем.
Совет!
Если планируется построить дачный туалет и душ из кирпича, то выгребная яма располагается под туалетом.
Ленточный фундамент
Подготовка основания
Следующим этапом является подготовка основания для будущего душа.
Инструкция по выполнению этой работы выглядит так:
- В первую очередь нужно удалить с площадки весь мусор и траву, после чего снять слой грунта примерно на 10 см.
- Затем надо выполнить разметку. Для этого по углам будущей постройки забиваются колышки, и между ними натягивается нитка. Разметку необходимо проверить по диагоналям (должны иметь одинаковую длину).
- После этого следует выкопать траншеи на глубину около 0,6 м, шириной превышающей толщину будущих стен.
- Затем выполняется слив, который, как правило, проходит сквозь фундамент. Для этого труба от площадки будущего душа укладывается под небольшим наклоном и заводится в сливную яму.
Вариант организации слива
- Далее дно траншей нужно засыпать песком и щебнем толщиной 15-20 сантиметров. Причем каждый слой необходимо тщательно утрамбовать.
- После подготовки траншей надо сделать своими руками опалубку из досок или щитов ДСП.
- Затем опалубку нужно армировать. Для этого забиваются вертикальные пруты арматуры и привязывается к ним поперечный пояс из таких же прутов.
После установки опалубки нужно приготовить бетон для фундамента в такой пропорции:
После приготовления бетона смесь заливается в опалубку и выводится «под ноль», т.е. торец фундамента должен располагаться в одной горизонтальной плоскости. Чтобы проще было выровнять фундамент, можно предварительно натянуть нитки, выровняв их положение строительным уровнем.
Спустя 28 суток, когда застынет цемент, нужно залить пол душа.
Данная операция выполняется в таком порядке:
- В первую очередь грунт засыпается небольшим слоем песка.
- Затем укладывается армировочная сетка.
- Далее пол заливается бетоном. При этом необходимо выполнить небольшой уклон в сторону сливного отверстия.