Проекты бань своими руками. Проектирование бани: основные помещения и удачные примеры планировок
- Проекты бань своими руками. Проектирование бани: основные помещения и удачные примеры планировок
- Баня своими руками из подручных материалов. Устройство потолка бани из подручных материалов
- Мини баня своими руками: чертежи. Миниатюрные каркасные баньки — оптимальный выбор
- Проект бани 3х4. Выбираем материалы
- Баня 2 на 4 своими руками. Проект эконом бани
- Маленькая баня своими руками. Баня на даче: проекты
- Самая простая баня своими руками. Преимущества и недостатки самостоятельной постройки
- Бюджетная баня своими руками — разновидности конструкций, варианты недорогих материалов для внутреннего и внешнего обустройства своими руками
Проекты бань своими руками. Проектирование бани: основные помещения и удачные примеры планировок
Даже самый маленький проект не может состоять только из турецкой бани. Чтобы санузел нормально функционировал и условия его эксплуатации обеспечивали комфорт человеку, в планировку следует включить и другие помещения. Для этого внутреннее пространство здания разделено на небольшие комнаты, каждая из которых играет свою роль.
В конструкции бани 5 на 6 м (с учетом небольших размеров такой постройки) нет необходимости использовать несущие стены для разделения пространства на зоны. Достаточно будет легких деревянных перегородок. Они не нуждаются в закладке фундамента и не несут дополнительных нагрузок.

При разделении пространства вместо стен можно использовать стеклянные перегородки для экономии места
За счет разделения основного пространства на несколько секций можно будет эффективно и быстро отапливать парилку. В этом случае остальные помещения не будут отапливаться. Это преимущество особенно полезно для комнаты отдыха.
Гардеробная относится к категории необходимых помещений. Это помещение используется как входная дверь в ванную комнату, предотвращая попадание холодного уличного воздуха в парилку. Здесь можно хранить дрова или другое топливо. Гардеробная подходит для обустройства небольшой гардеробной (гардеробной). При правильной планировке можно легко перейти из этой комнаты в парилку, душевую и комнату отдыха.
Планировка бани 3 х 5 м может включать достаточно просторную гардеробную. С помощью перегородок можно обустроить дополнительные помещения для хранения предметов и топлива. В гардеробной будет кстати большое окно, но только при условии, что его нет в парилке. В парилке должна быть только одна дверь, ведущая в раздевалку. Сама гардеробная может быть соединена переходами с другими помещениями.
Баня своими руками из подручных материалов. Устройство потолка бани из подручных материалов
После возведения стен и перегородок бани можно приступать к устройству потолка, который делают применительно к каркасной конструкции бани.
Для этого на верхнюю обвязку каркаса укладывают хорошо подогнанные друг к другу горбыль, доски или прямые обтесанные жерди. Затем этот накат покрывают снизу пароизоляционным материалом (пергамин, фольга) и обшивают тонкими досками (10—15 мм).
Сверху накат также покрывают слоем пергамина или рубероида, по периметру потолка закрепляют доски, образующие короб высотой 150 мм. Короб потолка засыпают слоем утеплителя (опилки, торф, керамзит), который сверху покрывают рубероидом или толью и устраивают обрешетку кровли. На обрешетку, покрытую также слоем рубероида, укладывают волнистые асбоцементные листы, закрепляемые кровельными гвоздями.
Кровлю каркасной бани с засыпными стенами выполняют, как правило, односкатной, что значительно упрощает и удешевляет строительство (рис. 7).

Рис. 7. Устройство потолка и кровли каркасной бани:
1 - стойки каркаса; 2 - подшивной потолок; 3 - пергамин; 4 - накат потолка; 5 - верхняя обвязка стоек; 6 - утеплитель; 7 - рубероид, толь; 8 - обрешетка; 9 - асбоцементный лист кровли.
Устройство пола бани начинают с установки опорного бруса. Его закрепляют гвоздями на уровне нижней доски обвязки по периметру каркаса (рис. 2; 6). Для обеспечения дополнительного крепления досок пола надо установить лагу, опирающуюся на отдельную опору и стойки каркаса. В последующем все работы по устройству пола, каменки, полка, слива воды и дренажной ямы выполняют по правилам, изложенным для деревянной бани.
Предлагаемый вариант каркасной бани с использованием дешевых подручных материалов под силу соорудить любому умельцу, даже не имеющему большого опыта строительных работ. Постройка каркасной бани может быть выполнена в максимально короткий срок (1,5—2 месяца), а применение дешевых материалов обеспечит существенную экономию семейного бюджета.
Источник: https://arbolit-dlya-stroitelstva.aystroika.info/stati/postroit-banyu-svoimi-rukami-osobennosti
Мини баня своими руками: чертежи. Миниатюрные каркасные баньки — оптимальный выбор
Мини-баня на загородном участке — прекрасный вариант для экономии площади. Правда, одновременно попариться в помещении 3х3 или 3х4 получится лишь у пары человек. Тем не менее, это самый быстрый и недорогой вариант постройки. За основу проще всего взять готовый проект каркасной бани. Можно объединить раздевалку, душевую и парилку в одном помещении. Или предусмотреть более удобный проект с отдельной парилкой, помывочной и комнатой отдыха.

Малогабаритные каркасные бани 4х3 или 4х4 — лучший выбор:
- для экономии на стройматериалах (брус 6 метров режут пополам, получается безотходная стройка);
- скоростного возведения конструкции (всего пару недель затрачивают на строительство при условии готового проекта);
- крепости готового сооружения (при закупке качественной пропитанной древесины каркасная баня простоит очень долго).
Баня до 20 кв. м — рациональное использование площади
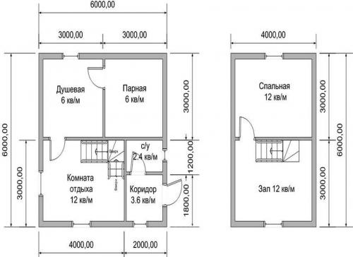
Если есть возможность построить каркасную баню 6х6, ее обязательно нужно использовать. Стандартные чертежи включают парную, душевую, комнату отдыха, небольшой коридорчик и санузел. Если разработать проект с мансардой, получите дополнительную жилплощадь на втором этаже. Ее можно использовать под гостевую, бильярдную или спальню.

Техдокументация для проектов каркасных бань площадью 20 кв. м предполагает организацию опорно-столбчатого фундамента с блоками из бетона , основание должно быть надежно гидроизолировано. На пол укладывают черновой настил (22-миллиметровая обрезная доска), затем чистовое покрытие в виде 30-миллиметровой шпунтованной доски. Антисептическую обработку и утепление 10-сантиметровой минватой нужно обеспечить в обязательном порядке.
Стены, перегородки и перекрытия делают из бруса 150х100 мм, используется также доска 100х50 мм и 100х40 мм. Вагонка после камерной обработки идеально подходит для обшивки потолка и перегородок. Десятисантиметровые плиты минеральной ваты и пароизоляция в два слоя укладываются под обшивку.

Для обустройства стропильной системы предназначена доска 100х50 мм, для обрешетки — 22 мм. Для кровельных работ лучше взять ондулин с волновым профилем Выбор оконной системы — деревянной или металлопластиковой — остается за владельцем. Для парной надо приобрести дровяную печь с баком для воды, продумать кирпичную кладку там, где будет располагаться топка.
Вот такие чертежи и планы можно использовать для возведения каркасной бани своими руками.



Индивидуальные проекты позволяют реализовать практически любые пожелания будущего владельца. Есть возможность присоединить к бане веранду или террасу. И даже в чертежи готовой документации можно вносить небольшие корректировки. Компании по разработке проектов предлагают следующий ряд услуг:
- объект под ключ — проект каркасной бани с заводской сборкой стен и перегородок, полной отделкой внутренних стен и фасадов;
- черновая отделка — облицовка или фасада, или внутренних стен;
- без облицовки — базовая сборка из щитов.
Проект бани 3х4. Выбираем материалы
В настоящее время существует огромный выбор строительных материалов, из которых можно возвести баню размером 3х 4, при этом особым спросом пользуются проекты деревянных (клееный брус, бревно), каркасных и каменных (газобетонные, керамические блоки, бетон, кирпич) построек.
Бани из бруса считаются самыми бюджетными и экологичными, тепловые процедуры в парилках, построенных из бруса, позволяют укреплять иммунитет, благотворно влияют на кожный покров и легочную систему. Для строительства таких бань применяют строганный брус стандартной длины 6 м.
Если планируется возводить стены шириной 3 м, то материал распиливают пополам.


Неплохо себя зарекомендовали и каркасно-щитовые конструкции, они считаются самыми легкими по весу, поэтому для установки не требуют подготовки массивного фундамента. Стены таких парилок возводят из бруса и щитовых панелей, между которыми укладывается утеплитель. Внутри помещений отделку, как правило, выполняют деревянной вагонкой, снаружи – сайдингом или блок-хаусом. Подобные парилки обходятся недорого в эксплуатации, они быстро прогреваются и удерживают тепло, что позволяет экономить на топливе. Минусом каркасно-щитовых бань считается то, что для их гидро-, паро- и теплоизоляции используются синтетические материалы, которые препятствуют в помещениях естественному воздухообмену.


Баня размером 3х4 может быть выстроена также из керамических блоков и пеноблоков. Этот материал считается самым удобным в строительстве, он характеризуется высокой прочностью, устойчивостью к влаге, температурным перепадам и отлично удерживает тепло, не давая усадку. Из пеноблоков возводят несущие стены, для перегородок же обычно применяют более легкие газоблоки. Постройку из блоков обязательно утепляют снаружи, а внутри устанавливают гидро- и пароизоляцию. Помимо этого, в подобных парилках дополнительно требуется штукатурка и декоративная отделка. Недостаток таких строений – низкая экологичность и воздухообмен


Многие мастера для строительства бань выбирают кирпич, который обладает высокими эксплуатационными характеристиками и прост в укладке. Несмотря на то, что цена на кирпич значительно выше стоимости на дерево, его срок службы намного больше и может составлять 120 лет. Чтобы парилка из кирпича быстро прогревалась и удерживала тепло, ее стены утепляют как снаружи, так и внутри. Декоративную отделку обычно выполняют вагонкой.


Помимо основного строительного материала, для возведения парилки размером 3 на 4 м требуется также паро-, гидро- и теплоизолятор. Это может быть стекловата, минеральная вата или пенопласт.
В смету необходимо включать и фурнитуру, двери, окна, а также металлический лист, осветительные приборы, монтажную пену, антисептик и кровельные материалы.
Баня 2 на 4 своими руками. Проект эконом бани
Просмотрев цены на материалы, можно заметить, что выгоднее строить баню из блоков либо по канадской технологии. Причем последний будет более выгоден, если часть материалов использовать б/у или низкосортных (к примеру, вместо обрезной доски можно применить необрезную, добавив колорита дачной бане). Более точные данные по расходу материалов можно получить после составления проекта и сметы.
Крайне важно до начала строительства продумать проект бани, рассчитать количество материалов, отметить все размеры и одновременно спланировать не только расположение помещений, но и меблировку в них.
Главным помещением в любой, даже самой маленькой бане является парилка. Здесь обязательно находится полок в два или три этажа и каменка. Даже если дачный участок небольшой, а баньку планируется ставить совсем скромную, парильное отделение нельзя делать площадью 3-4 квадратных метра из расчета на одновременное пребывание двух человек (посетителям должно быть удобно париться вениками, сидеть и лежать на полоках в полный рост). Такие нормы обусловлены соображениями безопасности (в очень тесной парилке легко обжечься о раскаленную печь или обварить кожу горячим паром).
Парная, интерьер
Также, если вся печь полностью находится в парной и из этого же помещения производится загрузка топлива, стоит увеличить полезную площадь помещения еще на 1-2 метра, чтобы было удобно складировать и подкидывать в топку дрова. Непосредственно перед печью обязательно настилается предтопочный лист размерами 1х1 м, что также отмечается на план-схеме будущей бани.
В бане непременно предусматриваются водные процедуры, соответственно, следует подумать о небольшой душевой, расположенной в отдельной комнате или смежной с парилкой. Второй вариант, когда парилка и помывочная объединены, позволяет сэкономить пространство и снизить расходы на монтаж канализационных сточных отводов, межкомнатных перегородок.
Планировка помещений в бане
Последняя важная комната бани – гардеробная или предбанник. Здесь должны уместиться лавки и вешалки для посетителей, шкафчик для банных принадлежностей, возможно, небольшой стол. Также возможен и предпочтителен вариант, при котором каменка располагается в парной, а загрузочная дверца выходит в предбанник, что позволяет экономить на отоплении.
На фото изображен маленький предбанник с решетчатым деревянным полом
В бане эконом можно обойтись без:
- водопроводной системы. Но придется обустроить печь с баком и приносить воду ведрами вручную;
- отдельного санузла. Эти удобства можно вынести на улицу или в дачный дом, если баня на даче будет использоваться только в теплое время года.
А вот без электричества и канализации обойтись не получится, поэтому желательно заказать или построить септик / выгребную / дренажную яму, а также протянуть силовую линию к месту строительства бани, ведь париться при свете свечи очень неудобно.
Банный слив
Обязательно укажите на план-схеме:
- габариты здания и каждой комнаты в отдельности;
- высоту потолков и общую высоту бани;
- месторасположение печи;
- стороны, в которые будут открываться двери, в том числе топочная;
- расположение окон (в парной окошко располагается на высоте от 185 до 195 см от пола и не над полоком);
- расположение розетки и выключателя, щитка и светильников (используются изделия только с уровнем влагозащиты выше IP54).
Ниже предлагается несколько проектов небольших одноэтажных дачных бань.
Маленькая баня своими руками. Баня на даче: проекты
Строим баню своими рукамиМалоразмерная помывочная на даче всегда была излюбленным объектом творчества. Каждый частник искал свой вариант постройки маленькой бани на даче своими руками, проекты фундаментов и отделки помещений. Проектов много, но почти все они привязаны к особенностям расположения участка и основного здания.
Среди универсальных вариантов чаще всего используются следующие схемы:
- Самая доступная версия помывочного отделения — компактная баня для дачи в виде пристройки к основному зданию;
- Наиболее распространенная каркасная мини баня с утеплением и обшивкой стен вагонкой;
- Полноценная брусовая постройка с выделенным в отдельное помещение моечным отделением;
- Самая доступная в постройке своими руками мини баня для дачи из обрезной доски – сороковки.
Последний вариант хорош тем, что его можно построить практически на любом пятачке дачного участка за пять — семь дней. Такая конструкция без проблем простоит три-четыре года, пока не придет черед построить настоящую баню.
Небольшая баня для дачи из кровельной доски
Главным преимуществом такой бани является низкая стоимость и большое внутреннее помещение. Большая часть коробки отводится под хозяйственный блок, где хранятся дрова и дачный инвентарь, парилка и предбанник занимают примерно 2/3 помещения.

Использование дощатых щитов в значительной степени ослабляет стены, поэтому коробку бани на даче по проекту предполагается построить на ленточном или плитном фундаменте. Такую времянку можно построить на купленном участке со старой дачей. Пока идут ремонтные работы, в помещении бани можно париться и хранить необходимый материал и инструменты.
Стены внутри бани обшиваются теплоизоляцией, можно минеральной ватой с алюминиевой фольгой. Чтобы внутрь не затекала вода, можно построить навес или оббить доски толстой полиэтиленовой пленкой, не менее 0,2 мм толщиной, на предварительно набитых рейках контробрешетки.
Простейший вариант мини бани для дачи
Иногда владельцы дачного участка предпочитают построить парилку непосредственно у стены дома. По сути, это универсальная кабина из досок и бруса, в которой одновременно можно париться или принимать душ.

Понятно, что построить одноместный банный бокс можно лишь в том случае, если в помещении дачи, в непосредственной близости к стене, сложена кирпичная печь.

Для разогрева мини бани на даче можно использовать жаровую трубу из толстой нержавеющей или легированной стали. Часть, обращенная в печь, закладывается банным камнем на глубину не менее 40 см. Над каменкой устанавливается водяной бачок с капельницей, поток пара прогревает кабину за 10 мин.
Чем интересен данный проект бани – кабины для дачи:
- Построить можно за день, при этом корпус бани лучше всего делать из сосновой доски – сороковки;
- Кабина не требует дополнительного фундамента или утепления. Нужно только построить душевой поддон с деревянным трапом;
- Время на подготовку бани составляет не более 10 мин., за это время успевают нагреться стены и вода в бачке для душа.
Вместо жаровой печи можно построить парогенератор или использовать промышленную модель для квартирных саун. В верхней части кабины бани устанавливается бак с водой для душа. Для подогрева используют встроенный электронагреватель. Удобнее всего построить помещение с выходом из бани в крытую веранду дачи, тогда париться можно в любую погоду.

Проект классической минибани
Для дачи с участком площадью не менее 10-12 соток чаще всего выбирают стандартные каркасные и брусовые мини бани, рассчитанные на двух – трех человек.
Один из вариантов планировки банного помещения для дачи приведен на схеме ниже.

К сведению! Особенностью планировки такой мини бани является минимальное количество внутренних перегородок.
В небольших коробках 2,5х2,5 м постройка комнаты отдыха является бесполезной и бессмысленной, какой тут может быть отдых.

Нужно оставить небольшой предбанник 2х0,7 м. Этого достаточно, чтобы сложить вещи, посидеть, здесь можно хранить запас дров, из которого удобно протопить печку.
Оба типа банного помещения строятся на столбчатом или буронабивном фундаменте. Построить каркасную баню своими руками для дачи получается намного проще и быстрее, хотя и несколько дороже из-за большого количества утеплителя.

Строительство бани на даче из бруса обойдется на 20% дешевле, но потребуется построить свайный фундамент и серьезно повозиться с усадкой стен. Минимум раз в сезон межвенцовые швы нужно будет чеканить паклей. Можно построить коробку с вентилируемым фасадом, но для дачи такой тип облицовки бани используется нечасто.
Самая простая баня своими руками. Преимущества и недостатки самостоятельной постройки
Возведение бани своими руками в саду – сложный, но творческий и созидательный процесс. Самостоятельное строительство пользуется достаточно большой популярностью. Среди основных достоинств выполнения работ собственными силами можно выделить:
- возможность использования проекта, разработанного в соответствии с личными потребностями, с учетом предпочтений всех членов семьи;
- экономия средств, собственник сам распоряжается выделенным бюджетом, а не платит сумму, озвученную подрядчиком;
- есть возможность строить поэтапно, вкладывая небольшие суммы;
- уверенность в качестве приобретенных стройматериалов;
- получение и накопление опыта, он пригодится при строительстве других построек;
- гордость за собственноручно построенное сооружение, которым можно похвастаться перед знакомыми и родственниками.

К недостаткам самостоятельного строительства бани можно отнести:
- необходимость изучения существующих проектов, составление собственной схемы;
- приобретение, транспортировка стройматериалов и оборудования, затраты на покупку инструментов, требуемых для выполнения работ;
- невысокая скорость возведения сооружения, опытные строители построят парную намного быстрее;
- полная ответственность за все этапы работ, от залитого фундамента до возведения стен и кровли, установки окон и дверей;
- сложность в расположении отопительного оборудования, проводки инженерных коммуникаций;
- следует быть полностью уверенным в своих силах, если не хватит времени, терпения, средств, то в результате на приусадебном участке может появиться недостроенный объект.
Бюджетная баня своими руками — разновидности конструкций, варианты недорогих материалов для внутреннего и внешнего обустройства своими руками
Имея загородный участок, каждый хозяин рано или поздно задумывается над тем, чтобы возвести на нем практичные постройки. Простая бюджетная баня своими руками будет отличным решением для первых шагов по облагораживанию прилегающей территории.

Если на участке имеется бассейн или водоем, то медлить точно не стоит, традиция париться станет неотъемлемым атрибутом каждого праздничного события.

На что обратить внимание
Такая специфическая постройка, как бюджетный вариант бани должна быть построена с соблюдением некоторых правил и важных рекомендаций. На каждом проекте умные люди пытаются сэкономить средства, но в этом случае лучше несколько раз хорошенько подумать.

Большинство материалов будут поддаваться термическому воздействию, которое губительно скажется на эксплуатации дешёвых составляющих.
Экономить нужно с умом
Благоразумно использовать средства это неплохая привычка, но во многих ситуациях лучше руководствоваться здравым смыслом. Некоторые проекты бюджетных бань разрабатываются с учетом материалов, которые способны выдержать высокие температуры.

Такие нюансы стоит учитывать при закупке, не будет лишним обратить внимание на производителя и качество вещи. Для построек существует перечень разрешенных для использования составляющих, с ним нужно ознакомиться в первую очередь.

Сэкономить получится лишь в том случае, если будет проведен качественный и скрупулёзный анализ ценовой политики магазинов, которые занимаются продажей материалов.

Сравнив стоимость в нескольких точках, каждый заинтересованный человек сможет подыскать подходящий вариант для себя и своего кошелька. Красивая бюджетная баня на даче сделанная с соблюдением всех важных правил прослужит долго и принесёт только положительные эмоции от эксплуатации.

Важный совет от специалистов
Внутренне оснащение также необходимо подбирать внимательно и не спеша, система довольно сложная и потребует осознанного подхода к строительству. Дело дойдет до выбора обогревательных приборов, бюджетная печь для бани это точно не та вещь, на которой стоит экономить.

Конструкцию можно сделать собственноручно, но на это уйдет довольно долгое время, к тому же дополнительные материалы для сборки стоят немало денег. Заводские модели намного проще в обслуживании и эксплуатации, а работы по установки не создадут особых проблем.
Удешевить постройку можно
Одним из самых актуальных вопросов остается, как сэкономить и на чем, рассматривая фото бюджетной бани в изящном исполнении, с первого взгляда можно и не понять в чем выиграли ее хозяева.

Но некоторые хитрости все же есть, стоимость строительства с имеющейся информацией может существенно снизиться, а на прочность конструкции и рабочие моменты это не скажется.
В основном опытные мастера отмечают следующие варианты для рассмотрения:
- Утеплитель.
- Печь.
- Фундамент.
- Обшивка.

К каждому пункту списка лучше подходить с особой внимательностью и хорошо продумывать свои решения. Когда дело касается выбора экологически чистых и безвредных составляющих постройки нужно понимать цену возможной допущенной ошибки. Чтобы произвести сложные замеры можно обратиться к специалистам и существенно сэкономить силы и время.

Подробнее об утеплителе
Дешёвые модификации нельзя назвать бесполезными, баня бюджетный вариант своими руками будет достаточно теплой и герметичной с такими материалами. Обратить внимание при выборе конкретного изготовителя нужно на разрешение использовать такую составляющую для построек данного типа.
Из экологически чистых теплоизоляционных решений стоит отметить базальную вату и пенофол. Свойства обоих материалов довольно хорошо зарекомендовали себя, а цена будет доступна каждой среднестатистической семье.
Благодаря удобным рулонам и широкому выбору толщины изделия можно легко подобрать нужный вариант по доступной цене.
Выбор печи
Подобные конструкции будут обеспечивать теплом и уютной атмосферой внутреннее пространство помещения, создавая благоприятные условия для всех гостей. Покупать дорогостоящую печь совсем необязательно, существуют не менее продуктивные дешевые аналоги.
Конструкция без выносной топки стоит в разы дешевле, но греет достаточно хорошо при использовании меньшего количества дров. Сэкономить получится не только на строительстве, но и на дальнейшей эксплуатации, самая бюджетная баня будет приносить радость хозяевам и восторг гостям, посетившим ее.