Арболит для строительства

Арбомонолит и другие необычные материалы.

Каркасная баня 3 на 5 м. Проект бани 3 на 5 м: план постройки сауны из бруса, кирпича, блоков. Тонкости внутреннего обустройства и планировки (120 фото-идей)

13.09.2023 в 23:35

Каркасная баня 3 на 5 м. Проект бани 3 на 5 м: план постройки сауны из бруса, кирпича, блоков. Тонкости внутреннего обустройства и планировки (120 фото-идей)

Многие собственники думают, что возведение бани на приусадебном участке хлопотное и затратное дело, которое требует наличие свободной земли под постройку.

Однако баню можно построить даже на небольшом земельном участке, ведь существуют проекты бань небольшого размера. Например, можно соорудить баню размером 3 на 5 метров.

Каркасная баня 3 на 5 м. Проект бани 3 на 5 м: план постройки сауны из бруса, кирпича, блоков. Тонкости внутреннего обустройства и планировки (120 фото-идей)

Преимущества небольшой бани 3 на 5

Небольшая баня обладает рядом преимуществ:

  • Вместительность. Можно разместить все необходимые атрибуты;
  • Бюджетность в виду небольшого размера постройки;
  • Экономия на стройматериалах, если для сооружения выбрать недорогой материал: шлакоблок, керамзитоблок, дерево;
  • Экономия времени. Строительство небольшой бани идет быстрыми темпами;
  • Экономия топлива. Баня быстро прогревается и топлива требуется меньше, чем для бани большого размера.

Каркасная баня 3 на 5 м. Проект бани 3 на 5 м: план постройки сауны из бруса, кирпича, блоков. Тонкости внутреннего обустройства и планировки (120 фото-идей)

Специфика маленькой бани

Небольшой размер бани позволит разместить внутри необходимые помещения и атрибуты для купания:

  • Парилку;
  • Раздевалку;
  • Комнату отдыха;
  • Душевую кабину или небольшой бассейн;
  • Туалет.

Так как все помещения получатся небольшого размера, то не стоит загромождать их лишними предметами. В бане размером 15 квадратных метров одновременно могут находится три человека, свободно перемещаясь по территории бани.

Каркасная баня 3 на 5 м. Проект бани 3 на 5 м: план постройки сауны из бруса, кирпича, блоков. Тонкости внутреннего обустройства и планировки (120 фото-идей)

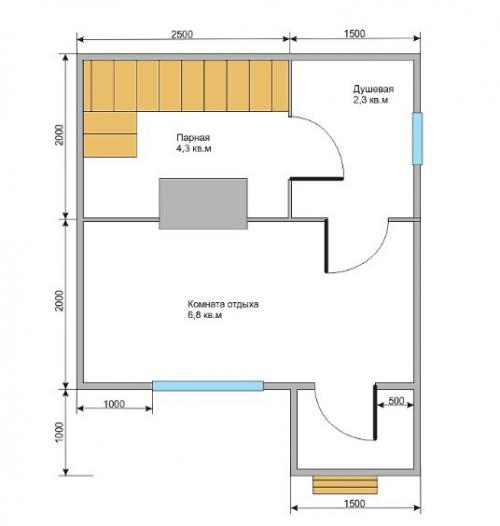
Планировка бани 3 на 5

Планировка маленькой бани непростое дело, ведь нужно разграничить внутреннее пространство так, чтобы каждое помещение смогло вместить в себя необходимые предметы.

Для парилки это каменка и лавки для сидения, для раздевалки — лавочка и крючки для вещей, для комнаты отдыха — стол и стулья или лавка. Необходимо сделать окна в каждом помещении на высоте двух метров от пола.

Каркасная баня 3 на 5 м. Проект бани 3 на 5 м: план постройки сауны из бруса, кирпича, блоков. Тонкости внутреннего обустройства и планировки (120 фото-идей)

Окна нужны для естественного освещения в дневное время и для проветривания бани, ведь это помещение с повышенной влажностью.

Предбанник зачастую выполняет несколько функций: Раздевалки и комнаты отдыха. Здесь же можно отвести место для хранения топлива для бани.

  • В предбаннике можно поставить небольшой стол, сделать полку для обуви, разместить на стене крючки для одежды, поставить стулья или лавочку для сидения.
  • Для экономии пространства стол можно поставить складной. В парной должны быть удобные полоки, чтобы можно было сидеть или лежать.
  • Лучше всего сделать их двухъярусными. Это позволит значительно сэкономить пространство парной. Кроме того, каждый посетитель парной сможет выбрать температурный режим комфортный именно для него, так как более высокая температура около потолка, то есть на верхнем ярусе.

Каркасная баня 3 на 5 м. Проект бани 3 на 5 м: план постройки сауны из бруса, кирпича, блоков. Тонкости внутреннего обустройства и планировки (120 фото-идей)

Помещение для охлаждающих процедур должно быть оборудовано душем или кадкой с водой. Это помещение можно оснастить лавкой для удобства.

Возможно совместить моечную с туалетом, что позволит сэкономить пространство и не выделять отдельное помещение для установки унитаза. Вместо душевой можно сделать небольшой бассейн.

Каркасная баня 3 на 5 м. Проект бани 3 на 5 м: план постройки сауны из бруса, кирпича, блоков. Тонкости внутреннего обустройства и планировки (120 фото-идей)

Вариации проектов бани 3 на 5

Небольшую баня можно разделить на два, три, четыре или пять помещений:

Многие собственники думают, что возведение бани на приусадебном участке хлопотное и затратное дело, которое требует наличие свободной земли под постройку.

Однако баню можно построить даже на небольшом земельном участке, ведь существуют проекты бань небольшого размера. Например, можно соорудить баню размером 3 на 5 метров.

Преимущества маленькой бани

  • Небольшой размер бани позволит разместить внутри необходимые помещения и атрибуты для купания;
  • В бане размером 15 квадратных метров одновременно могут находиться три человека, свободно перемещаясь по территории бани;

Планировка маленькой бани

Для парилки это каменка и лавки для сидения, для раздевалки — лавочка и крючки для вещей, для комнаты отдыха — стол и стулья или лавка. Необходимо сделать окна в каждом помещении на высоте двух метров от пола.

Окна нужны для естественного освещения в дневное время и для проветривания бани, ведь это помещение с повышенной влажностью.

Предбанник

Предбанник зачастую выполняет несколько функций: Раздевалки и комнаты отдыха. Здесь же можно отвести место для хранения топлива для бани.

Помещение для охлаждающих процедур

Помещение для охлаждающих процедур должно быть оборудовано душем или кадкой с водой. Это помещение можно оснастить лавкой для удобства.

  1. Проект бани с двумя помещением предусматривает совмещение необходимых помещений. Например, парную можно совместить с комнатой для охлаждающих процедур, а раздевалку совместить с комнатой отдыха. В помещении для парной можно установить душ, который отделить перегородкой.
  2. Проект бани с тремя помещениями предполагает отдельную моечную, парилку, а комнату отдыха совместить с раздевалкой. Этот проект предполагает установку унитаза в моечной.
  3. Четыре помещения в маленькой бане: раздевалка, комната отдыха, парная и моечная, в которой можно установить унитаз.
  4. Разделив внутреннее пространство бани на пять частей разного размера получатся изолированные помещения для каждой комнаты. Так, для туалетной комнаты можно отвести небольшой участок, установив внутри унитаз и небольшую раковину. Можно сделать маленький предбанник, чтобы осталось больше места для комнаты отдыха, парной и моечной.

Каркасная баня своими руками. Фундамент

Каркасная конструкция имеет небольшой вес в силу своих особенностей. Это означает, что для такой бани нет смысла заливать плитный или ленточный фундамент. Прекрасным решением будет использование винтовых свай. Они представляют собой металлические трубы, на конце которых находится небольшой бур. Благодаря буру сваи легко погрузить в землю на требуемую глубину. Длина свай должна быть такой, чтобы ее нижняя часть могла пройти пучинистые грунты и зафиксироваться ниже уровня промерзания грунта. При этом ее верхняя часть должна выступать над поверхностью на заданном расстоянии.

Некоторые мастера не рекомендуют выполнять разметку под винтовые сваи, которые будут служить фундаментом для бани. Аргументация заключается в том, что довольно просто сориентировать положение свай для бани относительно забора или другого строения. Если возведение бани производится на открытом участке, тогда без разметки под сваи не обойтись. На фото выше показано, как это можно сделать. Согласно разработанному проекту бани, размеры переносятся на участок, где будет осуществляться строительство.

Колышками обозначаются места, где должны быть вкручены сваи. Расстояние между сваями должно быть 1,5–2 метра. Все будет зависеть от оказываемой нагрузки, т. е. от общего веса строения. После проведенной разметки выбирается один из углов бани, в котором будет смонтирована первая свая.

Чтобы упростить себе задачу по монтажу, необходимо сделать приямок. Глубина приямка должна быть не меньше диаметра винта сваи. Он поможет начать вращение и углубление винтовой сваи.

На фото выше видно, что для качественного монтажа понадобится три человека. Двое осуществляют закручивание с помощью рычагов, а третий удерживает сваю в вертикальном положении. При этом использование магнитного уровня для отслеживания вертикального положения пока не требуется, т. к. свая не имеет прочной фиксации в грунте.

После того как свая жестко встала в землю, можно закрепить магнитный уровень. На фото выше видно, что он фиксируется перпендикулярно тому, как располагаются рычаги для закручивания.

Двое человек продолжают закручивать сваю, а третий отслеживает ее положение по уровню. Таким образом необходимо закрепить все угловые сваи фундамента для бани. После этого между сваями натягиваются две веревки, как показано на верхних фотографиях. Они образуют образный канал, в который будут смонтированы остальные сваи согласно разметке, которая была нанесена. Сваи требуются не только для основных стен, но и для перестенков. После того как сваи установлены на свое место, необходимо произвести их выравнивание.

Для решения этой задачи можно воспользоваться гидроуровнем. Предварительно необходимо выставить одну из свай, чтобы она была контрольной. На нее наносится метка, которая и будет переноситься на остальные сваи. Одна часть уровня прикладывается к контрольной точке, а вторая к противоположной угловой свае. Как только вода внутри уровня перестала колебаться, можно нанести метку.

Чтобы перенести разметку на остальные сваи, к ним нет необходимости подходить с уровнем. Необходимо между крайними сваями натянуть леску таким образом, чтобы она касалась промежуточных опор. После этого делается пометка по леске. По меткам производится обрезка опор. Далее на них приваривается металлический квадрат со стороной в 25 см. Он необходим для удержания нижней обвязки строения.

Далее выполняется обвязка для бани. Для этого понадобится деревянный брус с размером 15×15 см. Он укладывается на подготовленные площадки на сваях для каркасной бани. На фото выше видно, как соединяются отдельные элементы по углам. Необходимо сделать прорезь на половину толщины бруса, а также вырезать часть, которая будет равна его ширине. Получается углубление с размером 15×15 см. Такая же процедура повторяется и для второго бревна. После этого они соединяются между собой и скрепляются.

Выше на фото показано, как следует поступить с обвязкой для перестенков. Выполняется аналогичное углубление, но уже посередине бруса. После этого вторая часть укладывается сверху и фиксируется. Результат должен получиться примерно такой, как показано на фото ниже.

Между металлической площадкой и брусом укладывается гидроизоляция. Обязательно производится проверка диагоналей, чтобы стены у каркасной бани получились ровными. Если брус для фундамента бани придется наращивать, то делается это таким же методом, как и соединение двух элементов и обязательно на свае, чтобы был требуемый упор.

После сборки обвязки выполняется укладка СИП-панелей, которые будут выполнять роль утепленного чернового пола. Панели прикручиваются к обвязке бани саморезами, это делается для временной фиксации. Панели довольно просто прогибаются под весом, поэтому их необходимо усилить балкой, как показано на фото ниже.

Чтобы балка была хорошо зафиксирована в СИП-панели, на место стыка необходимо нанести монтажную пену. Между отдельными панелями оставляется зазор в 5 мм, который выполняет роль термошва.

Источник: https://bani-iz-brusa.postroivsesam.info/stati/iz-chego-sdelat-banyu-bystro-i-nedorogo-iz-penobloka

Каркасная баня 6 на 3 своими руками. 3x6, 6x6, 6x4

Рассматривать баню не только как утилитарную постройку, но и как место общения можно, если ее полезная площадь более 16 м2.

Важно! Чем просторней парилка, тем большим числом вентиляционных отверстий (с задвижками) её необходимо снабдить: каждому кубометру объёма — 24 см2. Каркасная баня 6 × 3 метра «может себе позволить» отдать часть полезной площади террасе. Фасадную (короткую) стену можно «сдвинуть» вглубь на полтора метра, тогда закрытая площадь бани — чуть более 13 м2

Получится каркасная баня 3 × 4 с закрытой по бокам зоной отдыха перед входом

Фасадную (короткую) стену можно «сдвинуть» вглубь на полтора метра, тогда закрытая площадь бани — чуть более 13 м2. Получится каркасная баня 3 × 4 с закрытой по бокам зоной отдыха перед входом

Каркасная баня 6 × 3 метра «может себе позволить» отдать часть полезной площади террасе. Фасадную (короткую) стену можно «сдвинуть» вглубь на полтора метра, тогда закрытая площадь бани — чуть более 13 м2. Получится каркасная баня 3 × 4 с закрытой по бокам зоной отдыха перед входом.

Террасой дополняют и маленькую, и большую каркасную баню — вдоль всей стены, или с «захватом» одного угла.

Используя всё пространство под закрытые помещения, площадь 6 × 3 м вместит пятерых посетителей. Поперечный предбанник шириной более 2 метров теперь слабо пострадает, если в парную и моечную из него будут вести отдельные двери.

Видеоролик о пропорциях лёгкой бани — каркасной — 3 × 6 своими руками (пошаговая инструкция возведения наружных стен из бруса 150 × 100 мм и цементно-стружечных плит), удачно отмечено положение фундамента стационарной печи с загрузкой дров из прихлжей:

Печь-каменку можно дополнить камином (отводя дым одним дымоходом), либо второй печкой.

Кроме камина в предбаннике поместятся лежанка, скамейка, стол с табуретками — раздевалка 2 × 3 станет комнатой отдыха.

Моечная вместит душевой поддон, парная — два яруса полков. (Полки удобнее делать напольными — чтобы не нагружать стену).

Баня 6 на 3 каркасная. Особенности

Баня со сторонами 3 на 6 метров, несмотря на небольшие габариты, может быть комфортабельной и функциональной. Вмещать такое строение может 3-4 человек одновременно. Площадь бани принято разделять на 4 основные функциональные зоны:

  • парилка;
  • комната отдыха;
  • душевая;
  • тамбур.

Около 4 кв. м стоит отдать на моечную или душевую. На саму парилку следует выделить минимум 6 квадратных метров.

Комната отдыха, как правило, обладает площадью, равной 6 или 8 квадратным метрам. Во втором случае это возможно только при отказе от тамбура. В данной зоне необходимо разместить диван, небольшой столик, возможно, телевизор или зону для чаепития.

Также стоит выделить место для хранения полотенец, одежды и косметических средств. На тамбур принято выделять от силы 2 квадратных метра.

Данное помещение предназначено для того, чтобы отделять внутреннюю зону бани от улицы. Всю пользу тамбура легче оценить в холодное время года, когда пространство используется для хранения дров либо для размещения верхней одежды. В принципе, в качестве тамбура может использоваться и веранда. Вообще, при составлении проекта бани основным требованием является организация парной площадью 6 квадратных метров, а габариты остальных помещений могут варьироваться.

Каркасная баня 3 на 5 м. Проект бани 3 на 5 м: план постройки сауны из бруса, кирпича, блоков. Тонкости внутреннего обустройства и планировки (120 фото-идей) 06

Каркасная баня 3 на 5 м. Проект бани 3 на 5 м: план постройки сауны из бруса, кирпича, блоков. Тонкости внутреннего обустройства и планировки (120 фото-идей) 07

К достоинствам бани площадью 3 на 6 метров, с одной стороны, можно отнести ее компактность. Небольшое строение легко разместится даже на небольшом участке, впишется в имеющийся ландшафтный дизайн и не создаст тень для цветов и растений. Однако, с другой стороны, малые габариты сделают неудобным посещение бани большой компанией Но при этом небольшая баня стоит недорого и, в принципе, довольно просто конструируется своими руками. Для обогрева помещения площадью 18 квадратных метров требуется минимальное количество дров, а содержать и обслуживать ее довольно просто.

Недостаточная площадь помещения может быть увеличена путем надстройки второго этажа. Также хорошим решением является добавление крыльца, веранды или террасы.

Каркасная баня 3 на 5 м. Проект бани 3 на 5 м: план постройки сауны из бруса, кирпича, блоков. Тонкости внутреннего обустройства и планировки (120 фото-идей) 08

Каркасная баня 3 на 5 м. Проект бани 3 на 5 м: план постройки сауны из бруса, кирпича, блоков. Тонкости внутреннего обустройства и планировки (120 фото-идей) 09

Каркасная баня 3 н. Каркасная баня 3х4 своими руками: Проекты с Фото

Каркасную баню построить намного проще и быстрее, чем кирпичную или сруб. Масштабные чертежи, дорогостоящие материалы и работы, внушительный фундамент – все это отсутствует. Главное правильная термо- и гидроизоляция, а также готовый проект, на который можно ориентироваться.

Проект каркасной бани 3х4 м

Под такую постройку достаточно ленточного или столбчатого фундамента. Сооружение практически не дает усадки ввиду своей легкости, поэтому для основы маленькой каркасной бани необходимо приобрести лишь хорошо просушенный брус размерами 20х20 см для стоек и доску. Чертежи наиболее простых и малозатратных бань можно увидеть ниже.

Каркасная баня 3 н.  Каркасная баня 3х4 своими руками: Проекты с Фото

Каркасная баня 3 н.  Каркасная баня 3х4 своими руками: Проекты с Фото

К преимуществам каркасных бань также можно отнести отсутствие деформации, возможность сделать инженерные коммуникации скрытыми, разнообразие отделочных материалов. Строение с квадратурой 12 м2также прекрасно удерживает тепло, как и сруб.

Чтобы ваша баня прослужила долго и не требовала ремонта, необходимо обратить внимание на следующие моменты:

  • каркас должен рассполагаться на ровной поверхности;
  • не стоит выбирать самую дешевую термоизоляцию;
  • древесина должна быть качественной, не тонкой и тщательно обработанной антисептиками;
  • если каркас вызывает сомнения относительно шаткости, его обязательно усиливают подкосами.

Каркасные бани не бояться усадки, так как материал достаточно упруг и не боится усадок. Верхние срезы цоколя ложатся на опорные, хорошо гидроизолированные брусья. Лучше если они будут из дуба, лиственницы или граба. Для связки деревянного пояса и фундамента использую анкера из арматуры (1,4-1,6 см) с крючками, заглубленными в бетон до 20 см. С другой стороны должна присутствовать резьбы под гайку.

Каркасная баня 3 н.  Каркасная баня 3х4 своими руками: Проекты с Фото

Угловые стыки, как правило, делают «под лапу» и закрепляют анкерами. Дальше – выставляются крайние стойки (10х15 см) вертикально и закрепляются при помощи укосин. Толщина стоек должна соответствовать толщине утеплителя.

Каркасная баня 3 н.  Каркасная баня 3х4 своими руками: Проекты с Фото

Для строений 3х4 м допустима установка подкосов на угловых стойках.

Каркасная баня 3 н.  Каркасная баня 3х4 своими руками: Проекты с Фото

Если баня будет двухэтажная, лучше ставить подкосы в каждом пролете. Шаг стоек каркаса 0,6-0,8 м. Они крепятся к опорному брусу при помощи стальных скоб. Брусья должны быть сечением не менее 5х15 см.

Особенности постройки каркасной бани

Каркасная баня прослужит достаточно долго при использовании качественной и надежной термо- и гидроизоляции. Снаружи здание можно защитить от внешнего воздействия сайдингом или блокхаусом, которые сделают баню похожей на сруб и уберегут от гнили или плесени.

Каркасная баня 3 н.  Каркасная баня 3х4 своими руками: Проекты с Фото

На самом деле мини-баню вполне можно оборудовать самостоятельно. Никакие особые навыки не требуются. Главное, представить, как она должна выглядеть (с террасой или без), продумать эргономичное отопление и водоотведения, теплоизоляцию и ознакомиться с типовыми вариантами. Фото проектов каркасных бань 3х4 своими руками можно посмотреть далее.

Каркасная баня 3 н.  Каркасная баня 3х4 своими руками: Проекты с Фото

Каркасная баня 3 н.  Каркасная баня 3х4 своими руками: Проекты с Фото

Готовый проект небольшой банной постройки можно заказать у ряда фирм, однако, чтобы в итоге не разочароваться и при желании, все можно сделать и самостоятельно. Для начала, необходимо заложить фундамент, а это значит прикупить асбестоцементные трубы длиной до 40 м и диаметром не менее 10 см. Также необходимо пробурить скважину – диаметр – 20 см, глубина – 1,5 м. И, приготовить раствор из воды, мелкого щебня, цемента и песка.

Важный этап в постройке бани своими руками – обвязка, для чего необходимы доски 5х10 см, обработанные антисептическими растворами. Делается разметка стен и производится укладка материала по внешнему контуру. Доска ложится наружными гранями и крепится гвоздями. Цоколь соединяется при помощи опор.

Обвязки (верхняя, нижняя) – выполняются из досок, настил рубероида от нижней поверхности отсекается. Все проводимые работы контролирую уровнем. При отклонении, осуществляют дополнительную укладку толя. Чтобы конструкция была прочной обвязку и лаги закрепляют с использованием предварительно вмонтированных металлических пластин. Их также нужно обрабатывать антисептиком.

Возведение стен требует измерения метража между осями. Если нет стыковки со стенами – хватит 0,6 м, при их наличии, необходим зазор в 0,4 м.

Каркасная баня 3 н.  Каркасная баня 3х4 своими руками: Проекты с Фото

Интервалы от стойки до стойки будут зависеть от размеров оконных проемов и дверей. Рамы, после закрепления необходимо проверить на точное совпадение с прямоугольными параметрами. Стропильные конструкции лучше собирать на открытом участке земли.  Для придания строению жесткости стены оббиваются штукатурной дранью. Кровлю часто предусматривают с вентиляционной системой. Также, построить каркасную баню своими руками, как мы уже говорили не так уж и сложно, но с крышей все немного по-другому. Поэтому если у вас нет опыта установки или ремонта кровли дома или бани, то можно обратиться к специалистам по этой ссылке:. Вы найдете специалистов с большим опытом, которые занимаются ремонтом крыши и они точно смогут вас проконсультировать и помочь с вашим проектом.