Баня с парилкой и мойкой. Проекты
- Баня с парилкой и мойкой. Проекты
- Баня с парилкой и комнатой отдыха. Преимущества проекта бани 4 на 5
- Планировка маленькой бани. Размеры бани
- Проект бани с большой парилкой. 3 на 4
- Как отделить парилку от мойки. Из чего сделать перегородки в бане
- Баня с отдельной парилкой и мойкой. Баня с парилкой и мойкой в одном помещении: преимущества и недостатки
- Как сделать баню с отдельной парилкой. Функциональные зоны в бане
- Схема бани с парилкой. Проект и расчет
Баня с парилкой и мойкой. Проекты
Традиционно, в бане должно быть две комнаты: предбанник и непосредственно парилка. Они могут быть объединены или быть двумя разными комнатами. Однако на этом варианты не заканчиваются. Как и при строительстве дома, существует огромное количество проектов, которые могут вдохновить вас.
Баня может быть пристроена к частному дому в городе или расположена на дачном участке. Может являться отдельным зданием или быть частью дома, его отдельной комнатой или, например, небольшим угловым помещением (наравне с ванной и санузлом).
Итак, с традиционной двухкомнатной баней разобрались. Дальше – интереснее.
Баня с бассейном считается целым банным комплексом. Построить его не так сложно, как кажется на первый взгляд. В продаже имеется огромное количество чаш под бассейны самых разных форм и размеров. Расположить бассейн можно в парной, обязательно отгородив его стеной от парилки, или присоединить к основному помещению бани в качестве ещё одной комнаты, оформить его стеклянными стенами или навесить сверху солидную крышу, или поликарбонатный козырёк. Главное – помните, что парилку и бассейн обязательно должна разделять стена, чтобы влажный теплый воздух и воздух комнатной температуры не конфликтовали.
В оформлении бассейна также нет каких-либо сильных ограничений. Вы можете оформить дно мозаичной плиткой, внутренней подсветкой или даже разместить там какие-нибудь водоросли.
Если вы относите себя к любителям всего нового и оригинального, советуем присмотреться к новинке – каскадному бассейну, который многие называют просто водопадом. Выглядит это так: благодаря замкнутой системе циркуляции, вода подаётся сверху вниз, затем по трубам снова поднимается вверх и так, водопадом, бесконечно падает вниз. Размеры этого бассейна будут не такими уж огромными, но выглядеть он будет эффектно, особенно если в качестве декора присмотреть камни или 3D-изображения с фотографиями морских пейзажей.
Пристроить каскадный бассейн к уже готовой бане не представляется возможным. Его следует планировать ещё на этапе проектирования, ведь он оказывает серьёзное влияние на водоснабжение, систему вентиляции, а также нагрузку на электросеть.
А вот если душа требует размаха, то двухэтажная баня будет лучшим вариантом. Зонирование в таком случае происходит следующим образом: на первом этаже парилка, моечная, котельная, при желании бассейн и хозяйственные помещения. На втором – жилые комнаты, комната отдыха, душевая, столовая, библиотека, бильярдная или бар.
Второй этаж можно смело назвать развлекательным, что особенно актуально, если вы привыкли звать гостей в баню и собираться здесь большими компаниями. Более того, зачастую из таких бань делают настоящие жилые дома или проводят здесь весь дачный период.
Определённую сложность в случае с двухэтажной баней может представить лестница. На самом деле, правильно её будет ставить в комнате отдыха или в раздевалке, дабы влага не попала в верхние помещения. Ни в коем случае не располагайте лестницу на террасе или улице. Не нужно также, чтобы она шла через балкон, ведь зимой подниматься по холоду будет не очень-то приятно.
Бани могут разительно отличаться по размеру: 5х5, 5х6, 4х7, 2х2, 6х5, 8х9, 2х2, 6х8, 8х8, 6х10 и так далее. В общем и целом, размер бани влияет только на то, какое количество человек там должно находиться одновременно, и сколько комнат вы хотите там иметь. Вы не обязаны строить свою баню по примеру общественной – небольшой, маленькой и узкой. Баня – это место отдыха, расслабления, и она должна быть комфортна именно для вас.
Баня с парилкой и комнатой отдыха. Преимущества проекта бани 4 на 5
Баня в наше время стала любимым местом для отдыха, в ней совмещается нагретый воздух парилки и прохлада купели.
- Размер такой бани небольшой, а потому её можно построить даже на маленьких участках. Несмотря на это баня 4×5 будет хорошо выполнять свою функцию. В ней разместятся все основные комнаты, а также план такой баньки может вмещать туалет и веранду.
- В парной такой бани могут разместиться в одно время 3-4 человека. Это маленькая компания, но для семейного круга, строение таких габаритов вполне отвечает необходимым запросам.
- Небольшое расходование топлива и быстрое нагревание парилки. Чем парная больших размеров, тем большее расходование топлива и дольше надо ожидать, пока в комнате установится потребная температура. В такой бане быстро устанавливаются необходимые условия.
- Конструкционная простота. Такая баня маленьких размеров, потому её строительство не вызовет сложностей и её можно выстроить собственными руками.

Недорогая стоимость постройки бани. Это достоинство проистекает из предыдущего – учитывая что постройка простая, то трудностей с возведением не возникнет, простая установка, нет потребности платить строителям, всё получится создать собственноручно.
Если принято решение подключить к работе бригаду строителей, всё же возведение такой бани выльется в меньшую сумму, нежели строительство бани больших размеров. Ещё расходование сырья на возведение такой бани меньше, а значит её стоимость будет хозяевам ниже.
Планировка маленькой бани. Размеры бани
Прежде, чем приступить к планировке бани, нужно определиться с размерами, которые зависят от площади участка. Рассмотрим самые распространённые варианты бань, разных размеров.
Баня 2 на 2 метра
Это самая маленькая баня, где пространство ограничено, и разместить тут можно самое необходимое: парилку и предбанник. Печку рекомендуется устраивать таким образом, чтобы её часть размещалась в парилке, вторая в предбаннике. Мойка в свою очередь займёт своё место в парилке. Если все правильно обустроить, то можно наслаждаться банными процедурами.
Баня 3 на 3 метра
В таком помещении, несмотря на её размеры, можно уже заняться планировкой. Если хочется простора, то моечная и парилка размещается в одном помещении, остальную площадь отводят под комнату отдыха. Если же хочется попариться или помыться с комфортом, то для парилки и моечной можно выделить по полтора метра, как в ширину, так и длину.
Баня 3 на 4 метра
Метраж помещения немного больше, чем у предыдущих и распорядиться ею нужно грамотно. В таком помещении уже легко можно обустроить моечную и парилку. Печку рекомендуется расположить таким образом, чтобы сама топка находилась в предбаннике. Тогда будет легче поддерживать температуру в парилке.
Баня 4 на 4 метра
В таком помещении моечная и парилка будут иметь большую площадь, и, соответственно, увеличится их функциональность. Размещение моечной и парной комнат уже возможно организовать раздельно.
Проект бани с большой парилкой. 3 на 4
Чем дальше — тем веселее. Планировки бани 3 на 4 внутри, конечно, не могут похвастаться такой вариативностью, как у решений с общей квадратурой полезной площади, превышающих 50 квадратных метров, но, тем не менее, позволяют грамотно распределить все необходимые функциональные зоны с единственно верной целью — сделать использование банного помещения действительно приятным и запоминающимся.
Разумеется, на общей площади в 12 квадратных метров трудно разместиться большой компании. Поэтому при размещении тех или иных зон следует учитывать наиболее вероятный факт: такой небольшой баней, скорее всего, будет пользоваться семья из 2-3 человек либо дружеская компания на столько же человек. Все, что свыше, так или иначе, но будет немного снижать уровень комфорта. Взглянем на варианты внутренней планировки бани 3 на 4 с объединенными мойкой и парилкой.




Если вы используете печь-каменку, то логично разместить ее между парной и предбанником, чтобы распространить тепло по всей площади постройки. К тому же, вынос топочной части в предбанник позволяет вам увеличивать температуру пара, даже не заходя в парную и не растрачивая, тем самым, тепло, которое так или иначе, но выходит через открытую дверь.
Особое внимание следует уделить оформлению парной:
- не располагайте верхний лежак чересчур высоко — есть риск, что человек будет ударяться головой о потолок, когда будет слазить;
- при обустройстве лежаков учитывайте, сколько человек будет регулярно пользоваться баней;
- не располагайте лежаки чересчур близко от печи в своем стремлении сэкономить место — это не только не приносит удовольствие, но даже опасно для жизни
Вариант планировки 3х4 с мойкой и парилкой отдельно
Если проявить смекалку и некоторую инженерную хитрость, то можно осуществить внутреннюю планировку бани 3х4 с раздельным размещением мойки и парилки. В этом есть немало плюсов:
- принимать душ в прохладном помещении куда приятнее;
- возможность раздельного и одновременного использования моечной и парной;
- температура в парной всегда высокая, а пар — сухой и приятный.
Посмотрите на то, какие есть варианты планировки бани 3х4 именно с раздельной интеграцией двух зон.





Как отделить парилку от мойки. Из чего сделать перегородки в бане
Значение простого, на первый взгляд, элемента настолько велико, что нередко хозяева решаются на серьезное перестраивание помещения с переносом простенков. Причиной такого решения может быть неудачная конструкция или неправильное первоначальное ее месторасположение. Понятно, что капитальную перегородку в бане никто сносить не будет, поэтому часто простенки между мойкой и парилкой ставят по временной схеме.
Внутренние перегородки в бане традиционно делают по нескольким схемам:
- Каркасные облегченные простенки. Наиболее удобный тип перегородок для парилок любой планировки. Возможность подобрать толщину теплоизоляции решает проблему точного дозирования количества тепла, перетекающего из парилки через стену в моечное отделение;
- Рубленые или сборные перегородки из бруса. Такие конструкции могут выполняться по разборной схеме, но лишь при условии, что при строительстве бани на стенах был установлен соответствующий крепеж;
- Простенки из кирпича или газобетонных блоков, применяются лишь при условии наличия внутри бани фундамента по линии разделения парилки и мойки;
- Стеклянные конструкции простенков удобны тем, что не требуют специальной гидроизоляции. Кроме того, часть излучаемого печкой тепла может беспрепятственно проникать через стекло внутрь мойки.
Кроме того, существуют конструкции временных раскладных перегородок, выполняемых по схеме жалюзи или ширмы. Используются для большого помещения бани в зимнее время, когда требуется уменьшить размеры парилки и тем самым поднять температуру внутри парного отделения. Такую же схему можно встретить в небольших баньках, протапливаемых по-черному.
Важно! Лучшим решением все же будет кирпичная перегородка в бане, стена между парилкой и мойкой служит одновременно тепловым аккумулятором.
Вся энергия, накопленная в кирпичном простенке от печки в парилке, будет использована для просушки и вентиляции помещения бани. Именно этим отличается перегородка из кирпича в бане от каркасных, блочных и брусовых простенков, они лишь изолируют помещение мойки, но никак не способствуют ее сохранению и проветриванию.
Баня с отдельной парилкой и мойкой. Баня с парилкой и мойкой в одном помещении: преимущества и недостатки
Баня с объединенными мойкой и парилкой в настоящий момент встречается не так часто. Этот вариант выбирают преимущественно в том случае, если площадь участка не позволяет сделать два отдельных помещения.
Компактная баня с объединенными помещениями дает возможность сэкономить не только территорию, но и деньги. Стоимость подобной постройки будет значительно дешевле, чем цена аналогичной по размерам бани с отдельными парилкой и моечной.
Еще одним плюсом является то, что баню, где парная и моечная объединены, в зимнее время посещать значительно приятнее: она быстро нагревается и быстро проветривается. Летом же, наоборот, охладить моечную достаточно сложно.
Баня с объединенными мойкой и парилкой имеет существенные недостатки. Первый из них связан с тем, что при такой конструкции гораздо сложнее поддерживать в парной нужные условия. В частности, если кто-то в моечной помоется, то в помещении повысится уровень влажности, и в парной будет менее комфортно. Да и запах мыла или геля для душа также мешает созданию нужной атмосферы.
По этой причине придется сначала всем париться, а только потом мыться, в противном случае вы будете вынуждены терпеть высокую влажность.
Кроме того, мыться в нагретой парной невозможно, поэтому придется ждать, пока помещение остынет.
Очевидно, что баня с объединенными моечной и парной – это вариант для небольшой компании (до 4-х человек). Если вы собираетесь отдыхать в большем составе, то однозначно нужно разделять эти помещения.
Как уже говорилось, баня с парной и моечной в одной комнате менее комфортна, т. к. всем приходиться либо париться, либо мыться, в раздельных же помещениях нет необходимости подстраиваться под других.
Ниже представлены фото бани с парилкой и мойкой, объединенными в одном помещении:



Проект бани 3х3 с совмещенными парной и моечной
Баня 3 на 3 совсем небольшая, поэтому сделать раздельные парную и моечную здесь затруднительно.
Ниже представлен проект маленькой бани, состоящей всего из двух помещений: парной и моечной, комнаты отдыха.
Этот бюджетный вариант подойдет для небольшого участка. В такой бане поместится 2-3 человека, но не более.
Проект бани 3х4 с совмещенными парной и моечной
Данная баня чуть больше, но она также имеет всего два помещения. Вместимость бани 3 на 4 составляет 2-3 человека.
В этом проекте предусмотрены более просторные парная и моечная, предбанник же имеет небольшую площадь – всего 6 кв. м.

Как сделать баню с отдельной парилкой. Функциональные зоны в бане
Понятно, что любая, даже самая маленькая банька с планом 2х2 м, всегда разделяется на зоны или отдельные помещения. Можно спланировать постройку в виде одной комнаты, но в этом случае парная сильно теряет в плане комфорта и температуры. Такая планировка парной часто использовалась в традиционных срубах для бани, в которой парились «по черному».
Этого требовал сам процесс помывки. Но даже при однокомнатной планировке помещение бани разделялось на функциональные зоны:
- Для печи и заготовленных дров;
- Для полок, которые располагались между печкой и входом;
- Для хранения инвентаря, приготовления кипятка и запаривания веников.
В современных банях помещение делят на отдельные комнаты. По-другому нельзя, слишком разная температура воздуха и влажность в парилке, в мойке и в комнате отдыха. В русской и турецкой бане можно убрать простенок между парной и мойкой, в сауне этого делать нельзя.
Если же в плане бани предусмотрена комната отдыха и раздевалка, то эти помещения можно объединять в одно для увеличения полезного объема. Но только в плане летней бани. Для зимней сауны комнату отдыха можно объединить с предбанником. В любом случае по плану между входом в помещение бани и комнатой, которая будет использоваться для отдыха и в качестве раздевалки, должен быть теплый тамбур.
Кроме того, нужно будет продумать план обстановки в предбаннике и парном отделении, моечную комнату в случае необходимости можно заменить душевой кабиной.
Начинать составление плана нужно с выбора места под печку, далее привязывается парная и остальные помещения бани
Предбанник
Самое простое помещение бани, настолько, что часто его даже не включают в планировку, если план сауны меньше 3х4 м или даже 4х4 м. Функции предбанника заключаются в уменьшении потерь тепла, снижении влажности воздуха в комнате отдыха и обслуживании топки печи.
С точки зрения комфорта предбанник должен присутствовать на плане любой сауны, так как это существенно упрощает обслуживание печи, повышает противопожарную безопасность и дает возможность освободить место в парилке от дров и топки. Предбанник нужен обязательно в случае, если отопление бани и подогрев воды для мойки обеспечиваются с помощью электрокотла. Без предбанника противопожарная инспекция не согласует план бани.
Предбанник чаще всего планируют в виде небольшого коридорчика, примыкающего боковой стеной к парилке. Рядом с входной дверью врезается тоннель с камином, здесь же на стеллаже укладывается запас дров. В этом случае часть простенка, разделяющего коридорчик и комнату отдыха, убирают, чтобы каминное тепло прогревало помещение для отдыха.
В зимней бане в предбанник нередко делают запасной вход с улицы для заноса дров и воды, через него любители закаливания выбегают из парной для купания или обливания на улице ледяной водой. Сюда же, в предбанник по правилам делают выход из моечного отделения. Получается, что коридорчик выполняет еще и санитарные функции, собирая воду и грязь, не допуская их попадания в комнату отдыха.
Душевая комната
Самая сложная в техническом отношении часть бани. Душевую комнату нужно обеспечивать горячей водой, системой слива и отопления. И все равно, пока стены парной и всей бани не прогреются, воздух и пол в душевой комнате остаются холодными. Приходится ждать, пока мойка не прогреется, и не появится возможность помыться перед первым заходом в парилку.
Поэтому мойку в плане бани всегда проектируют со смежной стенкой с парным отделением. Мало того, простенок выкладывают из природного камня, чтобы обеспечить приток тепла.
В больших рубленых банях мойку устраивают прямо в парилке. Если размеры парного отделения больше чем 2х3 м, то часть пространства мойки отделяют небольшим простенком из камня или бруса. Так и душевая всегда будет теплой, и убирать помещение легче.
Как сделать баню с отдельной парилкой: функциональные зоны в бане
Понятно, что любая, даже самая маленькая банька с планом 2х2 м, всегда разделяется на зоны или отдельные помещения. Можно спланировать постройку в виде одной комнаты, но в этом случае парная сильно теряет в плане комфорта и температуры. Такая планировка парной часто использовалась в традиционных срубах для бани, в которой парились «по черному».
В современных банях помещение делят на отдельные комнаты. По-другому нельзя, слишком разная температура воздуха и влажность в парилке, в мойке и в комнате отдыха. В русской и турецкой бане можно убрать простенок между парной и мойкой, в сауне этого делать нельзя.
Если в плане бани предусмотрена комната отдыха и раздевалка, то эти помещения можно объединять в одно для увеличения полезного объема. Но только в плане летней бани. Для зимней сауны комнату отдыха можно объединить с предбанником. В любом случае, по плану между входом в помещение бани и комнатой, которая будет использоваться для отдыха и в качестве раздевалки, должен быть теплый тамбур.
Кроме того, нужно будет продумать план обстановки в предбаннике и парном отделении, моечную комнату в случае необходимости можно заменить душевой кабиной.
Начинать составление плана нужно с выбора места под печку, далее привязывается парная и остальные помещения бани.
Самое простое помещение бани, настолько, что часто его даже не включают в планировку, если план сауны меньше 3х4 м или даже 4х4 м. Функции предбанника заключаются в уменьшении потерь тепла, снижении влажности воздуха в комнате отдыха и обслуживании топки печи.
Функциональные зоны в бане:
- Парная (sauna)
- Мойка (bathroom)
- Комната отдыха (relaxation room)
- Предбанник (lobby)
- Раздевалка (changing room)
- Душевая кабина (shower cabin)
Обратите внимание, что в зависимости от типа бани (русская, турецкая, сауна) и ее размера, функциональные зоны могут изменяться.
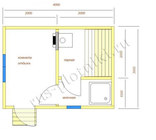
Схема бани с парилкой. Проект и расчет
Размеры самой парилки необходимо просчитать заранее. Нужно определиться, сколько человек будет одновременно принимать горячую процедуру. Существует минимальная норма площади на комфортное расположение в парной одного посетителя. Она равняется 0,7 м2.
Высота потолка в парилке должна быть минимальна. Потому что горячие воздушные массы будут скапливаться на самом верху. Если от полок до потолка остается большое расстояние, то полезное воздействие пара будет недостаточным. А весь жар будет расходоваться напрасно.
Оптимальной высотой считается 2 метра 20 сантиметров. Но при этом необходимо учесть два фактора при строительстве. Во-первых, из-за укладки на потолок слоя утеплителя он значительно опустится. Во-вторых, нужно учитывать рост самого высокого члена семьи. Для комфортного нахождения в парилке необходимо, чтобы над головой человека оставалось еще 20 см свободного пространства.
На устройство парной в бане влияет и расположение полок. Если они реализованы в виде лежаков, то нужно опять ориентироваться на самого высокого посетителя. И также прибавлять к длине стен по 20 см. При обустройстве только сидячих мест появляется возможность сделать парную более компактной.
Место для печи
Если отопительный прибор использует твердое топливо, то для удобства отвода продуктов сгорания его устанавливают к внешней стене. Это позволяет более экономично реализовать дымоход, сделав его вывод сразу на улицу. Более сложным вариантом является монтаж вертикальной трубы через чердак. Но он считается и традиционным.
Не следует забывать, что для печи из камня требуется обустройство отдельного фундамента. А еще нужно заглянуть в СНиП. Положение 41-01-2003 говорит, что любой нагревательный прибор должен находится от деревянных конструкций не ближе, чем на 32 см. Но если стена обшивается негорючим материалом, то расстояние может быть уменьшено до 26 см.
Исключение составляют печи, топка которых выведена в моечную. Для таких нагревательных приборов необходимо руководствоваться другими положениями СНиП. А реализация такого проекта имеет неоспоримые выгоды.
Преимущества печи с топкой в предбаннике:
- Дополнительно обогревается моечная или комната отдыха.
- Печь в парной можно оградить защитным экраном.
- Добавлять в топку дрова никто не будет мешать.
- Освобождается место, которое занимала открытая дверца топки.
Если баня протапливается углем, то последние два обстоятельства будут особенно актуальны. Грязи от такого топлива намного больше. А продукты сгорания чрезвычайно вредны для дыхания.