Строительство каркасного дома своими руками. Шаг №2: Фундамент для каркасного дома своими руками
- Строительство каркасного дома своими руками. Шаг №2: Фундамент для каркасного дома своими руками
- Каркасный дом 6 на 9 своими руками. Что проще: купить или построить
- Как построить каркасный дом 6х6 своими руками. Как построить каркасный дом 6 на 6
- Каркасный дом 6 на 8 своими руками. Проектирование фундамента
- Построить каркасный дом своими руками чертежи. Начало постройки и основная разметка
- Бюджетный каркасный дом своими руками. Как сэкономить на строительстве каркасного дома
Строительство каркасного дома своими руками. Шаг №2: Фундамент для каркасного дома своими руками
Огромное достоинство каркасного дома в том, что для его строительства подойдет практически любой тип фундамента. Единственным ограничением является тип грунта на участке и Ваши возможности.
Стоит сказать, что заложение фундамента для каркасного дома своими руками заслуживает отдельных тем обсуждения и вынесено в отдельные статьи. Тем более что типов подходящих фундаментов несколько, а какой выбрать – решать только Вам.
Здесь же я расскажу в двух словах о подходящих фундаментах для каркасного дома, и о том, в каких случаях применяется каждый из них, а также дам ссылки на подробное их описание.
Свайно-винтовой фундамент для каркасного дома
Самым распространенным типом фундамента для каркасного дома является свайно-винтовой. Это практически самый простой и дешевый вариант для такого дома, тем более, что произвести монтаж свайно-винтового фундамента не сложно и своими руками.
Такой фундамент подходит практически для любых грунтов, кроме скалистых. Особенно хорошо подходит для болотистых грунтов, где плотные породы грунта располагаются глубоко и другие типы требуют огромных затрат.
Вообще, все плюсы и минусы свайно-винтовых фундаментов , рассмотрены в другой теме, которая поможет Вам определиться с выбором опоры для Вашего дома.
Мелкозаглубленный ленточный фундамент
Мелкозаглубленный ленточный фундамент , так же используется для строительства каркасного дома своими руками довольно часто. Это обусловлено относительно небольшими затратами на его заложения, а также возможностью использования бетонных полов в доме.
Такой фундамент, в связи с его относительной хрупкостью, требует точного соблюдения технологии заложения.
Как правило, мелкозаглубленный ленточный фундамент используется в хороших грунтах, и категорически противопоказан на почве с очень высоким уровнем грунтовых вод и болотистых грунтах.
Плитный фундамент для каркасного дома
В последнее время, все большую популярность для строительства каркасного дома своими руками набирает плитный фундамент. Не смотря на его не малую стоимость, у него присутствуют очевидные плюсы, такие как универсальность, надежность, долговечность, а также его можно использовать как черновой пол в доме и не тратиться на него отдельно.
Частенько, вместо классической монолитной плиты используют плитный фундамент с ребрами жесткости. Это позволяет немного сэкономить на заложении, а также усиливает всю конструкцию в целом.
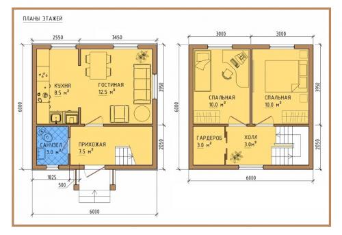
Каркасный дом 6 на 9 своими руками. Что проще: купить или построить
Многие строительные фирмы предлагают создание каркасных домов под ключ, включая внутреннюю отделку. Вам не нужно самому изучать материалы, заниматься строительством и тратить время на проектирование. Фирма, чьими услугами вы решите воспользоваться, сама подготовит проект, подберет для него подходящие стройматериалы и за короткие сроки возведет дом.
Но если вы все-таки хотите построить жилище своими руками, в этом тоже есть несколько преимуществ:
- стоимость дома будет значительно ниже, так как фирмы требуют за свои услуги большие суммы денег;
- весь процесс создания дома будет находиться под вашим контролем, и, соответственно, сроки также будут назначаться только вами;
- можно будет самому покупать материалы и продумывать дизайн интерьера.
Выбирая способ самостоятельной постройки дома, можно обратиться к Интернету и специализированным сайтам, где можно найти уже готовые проекты домов. Также в сети можно получить советы специалистов и изучить отзывы опытных строителей.
При разработке самостоятельного проекта стоит учитывать особенности местности, нагрузки на несущие конструкции, расположение подводов канализации, воды и отопления. Также стоит заранее согласовать все с коммунальными службами. Важным шагом перед началом строительства является получение специального разрешения в муниципальных органах и регистрация жилья в общей базе. Если же вы строите дачу, то все эти разрешения вам не нужны.
Построить одноэтажный или двухэтажный каркасный дом размером 6 на 9 совсем не сложно, если учитывать рекомендации. Вам потребуются план, чертежи и пошаговая инструкция.
Как построить каркасный дом 6х6 своими руками. Как построить каркасный дом 6 на 6
Каркасный дом 6х6 своими руками — пошаговая инструкция
Каркасные дома возводят по современным совершенным технологиям. Сама структура дома состоит из двух компонентов: каркаса и составляющих, таких как внешняя и внутренняя обшивка, теплоизоляционные наполнители. Каркас может быть как деревянным, так и металлическим. Такой дом очень прочен, долговечен. При соблюдении технологии строительства, в таком доме будет тепло и уютно.
Проект каркасного дома

Без предварительного плана строительство каркасного дома нереально. Проект каркасного дома включает в себя следующие этапы проектирования:
- Проектирование планировки положения каркасного дома, сообразно правилам и стандартам размещения жилого здания на участке;
- Архитектурное проектирование – создание плана дома, чертежей, расчет необходимого количества строительных материалов;
- Конструктивное проектирование включает в себя выбор типа фундамента, формы каркаса дома, перекрытий, формы крыши;
- Проектирование системы отопления , вентиляции, канализации, водоснабжения и системы электричества;
- Расчет стоимости материалов и работы строителей, рабочих;
- Организация строительства;
- Обустройство участка.
Особенности, отличающие каркасные дома

Каркасные дома обладают целым рядом преимуществ:
- Прочность и долговечность конструкции такого дома определяются особенностями каркаса, частоты вертикальных балок и их толщиной;
- Невысокая стоимость возведения и эксплуатации;
- Простота и высокая скорость строительства;
- Экологичность;
- Можно строить в любое время года.
Рекомендации по строительству

По возведению каркасных домов существует несколько рекомендаций, способных облегчить возведение и эксплуатацию каркасного дома, помочь избежать некоторых ошибок при строительстве. При выборе материалов и выполнении строительных работ следует придерживаться следующих советов:
- Чтобы построить каркасный дом правильно, необходимо использовать древесину влажностью не более 10-15%. Такая древесина практически не деформируется;
- Стройматериалы лучше брать с небольшим запасом;
- Столбчатый фундамент необходимо вбивать на 20-30 см глубже уровня промерзания;
- Все деревянные строительные материалы необходимо обработать специальной пропиткой, для защиты от грызунов и возгорания;
- Все работы необходимо проводить последовательно, по плану;
- Прежде чем приступать к строительству, необходимо как можно тщательнее проработать проект дома, переделывать потом будет очень сложно и дорого.
Фундамент

Строительство дома начинается с закладки фундамента. Для каркасных домов обычно используют два типа фундамента: ленточный и столбчатый (сваи). Выбор зависит от следующих условий:
- Уровень грунтовых вод;
- Уровень промерзания почвы;
- Тип грунта;
- Масса конструкции дома.
Каркас пола

Каркас пола создают следующим образом:
- Сначала необходимо зафиксировать на фундаменте доски нижней обвязки. Элементы устанавливают на ребро. Размер досок, в среднем 15Х5 см;
- Соединяют, саморезами или нагелями доски нижней внутренней обвязки в углах;
- К внутренним доскам прикрепляют доски средней части нижней обвязки;
- К средним доскам необходимо прикрепить наружные;
- Прежде чем приступить к следующему этапу, необходимо убедиться в ровности конструкции. Лишнее снимают электрорубанком;
- Необходимо разметить места, где будут установлены лаги. С помощью лобзика в обвязке делают пазы для вставки лаг;
- После установки лаг, между ними крепят деревянные рейки. Они будут выполнять функцию опор;
- поверх реек укладывают черновой пол. Обычно в данном качестве используют листы влагостойкого ОСБ или фанеры;
- Сверху, между лагами укладывают утеплитель: минеральную вату или пенопласт. Укладывают необходимые коммуникации: водопровод и канализационные трубы;
- Поверх утеплителя укладывают пароизоляционную пленку внахлест. Пленку проклеивают. Сверху кладут доски, толщиной 3 см на расстоянии 40-60 см друг от друга;
- Поверх полученной решетки укладывают шпунтованную доску толщиной 2,5-3 см, прикручивают саморезами или прибивают гвоздями.
Каркасный дом 6 на 8 своими руками. Проектирование фундамента
Строительство каркасных домов распространено в малоэтажном строительстве, то есть опытные профессионалы не рекомендуют возводить дома, в которых два и более этажей. Это должны быть одноэтажные постройки, не требующие укладку глубокозалегающего фундамента. Для таких домов приемлем мелкозаглубленный ленточный фундамент, сборный, состоящий из бетонных блоков или столбчатый. Контур любого из приведенных фундаментов является жесткой пространственной рамой. Элементы, которые придадут фундаменту необходимую жесткость:
- Мелкозаглубленный ленточный фундамент — арматурный каркас.
- Сборный — прочная и надежная нижняя обвязка.
- Столбчатый — монолитный ростверк.

Схема фронтона каркасного дома.
После того как сделан выбор фундамента, например, столбчатого, необходимо определить его параметры. Данные параметры определяются с учетом следующих характеристик:
- Типа грунта в зоне строительства, то есть опирания фундамента (расстояние 1,5 м над поверхностью грунта).
- Уровня грунтовых вод.
- Уровня промерзания грунта.
- Приблизительный общий вес будущего строения.
С целью определения примерного веса каркасного дома берется во внимание расчетная величина, составляющая 1 погонный м при высоте стен 3 м, а весе 1,7 тонн. Следует учесть и вес крыши, перекрытий, полов, полезной нагрузки и т.д. При одноэтажном доме результат умножается на периметр, если двухэтажный, то на 2. Так, для одноэтажного дома 6х8 периметр берется, равный 28 м, который умножается на 1,7, итого 47,6. Для двухэтажного — 47,6*2, получаем 95,2. Более подробные расчеты на подготовительном этапе смысла не имеют.
Далее планируют расположение каждого столба фундамента. Они могут располагаться с шагом 1,5 м, находясь на пересечении каждой стены в углах строения. Поскольку запланирована постройка каркасного дома 6х8 своими руками, то все параметры фундамента должны соответствовать схеме на рис.1. Из схемы можно вычислить необходимое количество столбов или опор. Согласно таблице на рис.2 определяем нагрузку в тоннах на одну опору. Исходя из этого, принимается расширение столба, равное 500 мм. Перед установкой фундамента необходимо представить, как он будет выглядеть и из каких элементов состоять, что представлено на рис. 3. Следует определить размеры и способ армирования элементов, состав бетонного раствора именно для заливки данного вида фундамента. Основными элементами фундамента, согласно схеме, являются столбы и ростверк.

Расчет пропорций бетона.
Бетонный состав для заливки будет зависеть от ее условий, то есть определяться:
- Температурой воздуха.
- Уровнем грунтовых вод.
Если температура будет выше +5°С при заливке, то применяется стандартный бетон В15-В25, состав которого включает цемент и песок 1 к 3, щебень используется тоже как заполнитель. Консистенция густой сметаны зависит от количества добавок воды.
Если температура ниже +5°С и бетонная смесь изготовляется бетономешалкой, то добавляют противоморозную добавку, соблюдая пропорции.
Построить каркасный дом своими руками чертежи. Начало постройки и основная разметка
Перед тем, как что-либо делать, нужно создать хотя бы простейший чертеж или эскиз. В нем должен содержаться план, – количество этажей, высота потолков, компоновка помещений. Это будет схема для постройки каркасного дома своими руками. Конечно, в процессе будут вноситься какие-то изменения, но общее видение будущего строения должно присутствовать.
Для начала производится разметка участка под будущий дом. Пользуясь рулеткой, угольником и деревянными колышками, очерчиваем площадь.
Колышки – контрольные точки для обозначения фундамента.
Фундамент может быть нескольких видов:
- Свайно-винтовой;
- Столбчатый;
- Ленточный.
Свайно-винтовой фундамент примечателен тем, что не требует применения дорогостоящих материалов, по способу создания очень прост и позволяет устанавливать сваи даже на неровной поверхности участка. Сваи устанавливаются так, что можно компенсировать кривизну плоскости. Металлические сваи закручиваются в грунт и становятся опорными точками для основы дома. После их установки верхние части свай, возвышающиеся над землей, обвязываются металлическими швеллерами или двутавром в виде рамы (так называемый, стальной ростверк). Поверх ростверка кладутся массивные брусья, к которым будут монтироваться остальные элементы дома.
Закручивание винтовых свай вручную – физически тяжелая работа, для механизированной установки придется обращаться в специальные фирмы.
Столбчатый фундамент рассчитан на более серьезные нагрузки, при его постройке применяют железобетонные столбы, кирпичные конструкции, бут и бутобетон. Даже на «сложных» грунтах можно получить надежный фундамент.
Ленточный тип состоит из замкнутого контура железобетонных балок, с поперечинами внутри. Бетонирование может производиться своими силами, но для анализа грунта и проектирования оптимальной конструкции придется обратиться к профессионалам. Например, высокий уровень грунтовых вод сделает проект нецелесообразным (с точки зрения финансовых затрат).
На этапе постройки фундамента, нужно продумать систему канализации и водоотведения, если планируется ее подводка к дому.
После создания фундамента нужно провести его гидроизоляцию. Это делается «горячей» укладкой рубероида совместно с битумной мастикой на верхнюю часть основания фундамента, желательно, в несколько слоев.
При самостоятельном бетонировании обязательно предусматривать каналы для отведения влаги, которая будет скапливаться под фундаментом; ее скопление будет постепенно разрушать материал – «вода и камень точит».

Бюджетный каркасный дом своими руками. Как сэкономить на строительстве каркасного дома
Каждого застройщика, планирующего построить дешевый каркасный дом своими руками, интересует цена такой постройки. Предварительные подсчеты показывают, что один квадратный метр дома, построенного по канадской технологии, обходится хозяину примерно в 6-7 тысяч рублей . Стоимость коммуникаций в расчеты не входит и определяется отдельно (еще около 8 тыс. руб. за 1кв. м).

Проектирование и строительство
Чтобы максимально снизить себестоимость строительства каркасного дома, не потеряв при этом в качестве, нужно учесть несколько важных моментов.
- Все строительно-монтажные работы рекомендуется проводить самому, без привлечения сторонних организаций.
- Выбирать лучше дешевый, но грамотный проект с незамысловатой планировкой.
- Самостоятельное проектирование дома без соответствующих знаний чревато ошибками и, как следствие, еще большими финансовыми затратами.
- Площадь дома не должна превышать 120 кв. м, в связи с высокой стоимостью проведения коммуникаций.
- Длинные пролеты, коридоры, холлы лучше исключить из проекта.
Материалы и инструменты
Учтите:
- Часть инструментов можно взять в аренду , купив лишь самые основные из них (молотки, шуруповерт, циркулярную плиту, уровень, набор карандашей и рулеток и т. д.).
- Осенне-зимний сезон – лучшее время для покупок стройматериалов. К концу сентября ажиотаж на строительство домов падает, а вслед за ним снижаются и цены.
- Покупая еще не высохшие пиломатериалы, можно сэкономить до 20% выделенного на них бюджета. Но сушкой придется заниматься самостоятельно.
Дешевый фундамент для каркасного дома, кровля
Вместо бетонных свай можно использовать буронабивные сваи ТИСЭ или покрышки, которые пользуются популярностью в Европе.

Дешевле всего обойдется односкатная кровля – на нее уйдет меньше материалов, времени и сил. Если нужен чердак, то нужна двускатная крыша. Кровли более сложной конфигурации требуют тщательных расчетов, грамотного проектирования и профессионального монтажа.
Самый бюджетный кровельный материал – ондулин (битумный шифер). Он, конечно, уступает металлочерепице и профнастилу, но, если стоит задача сэкономить на строительстве, можете смело его покупать. Лет через десять можно будет поменять крышу.

Внутренние и наружные работы, утепление
Стены из СИП-панелей не нуждаются в дополнительном утеплении , так как уже содержат утеплитель. При необходимости в регионах с суровым климатом можно дополнительно использовать фасадные отделочные материалы со слоем утеплителя.

Обычная полиэтиленовая пленка является хорошим и недорогим пароизоляционным материалом. Для гидроизоляции фасада лучше всего приобрести “Ютавек”.
Утеплить чердак можно за сущие копейки, воспользовавшись для этого обыкновенными деревянными опилками. Недорого стоит стекловата , а ее монтаж не потребует дополнительного оборудования.
Внутреннюю часть стен и потолок дома можно отделать вагонкой. Гипсокартон хоть и стоит дешевле, вместе со штукатуркой и покраской стоимость такой отделки увеличится в несколько раз.
Окна, двери и пол
Советы по экономии на окнах и дверях:
- Небольшие окна и низкие, до 2,5 метров, потолки – еще один способ сэкономить деньги. Таким образом, можно сократить теплопотери и расход материалов на строительство.
- Пластиковые окна лучше покупать напрямую у производителей – есть вероятность приобрести «отказные» окна со скидкой 50-60%. Отдать предпочтение лучше окнам Veka – у них армирование лучше, чем, например, у Renau.
- Чтобы сэкономить на стоимости дверей, снаружи дома рекомендуется сделать небольшую пристройку.

Выбирая между линолеумом и дешевым ламинатом для покрытия пола, лучше всего отдать предпочтение первому варианту. Линолеум недорогой, не нуждается в специальном уходе, водостоек, его легко можно постелить своими руками. Ламинат неустойчив к влажности, требователен к установке, через 3-5 лет может вздуться и покрыться трещинами, скрипит при ходьбе.