Эконом баня на даче своими руками. Бюджетная баня своими руками: этапы строительства от А до Я. Фото лучших вариантов маленьких и компактных построек
- Эконом баня на даче своими руками. Бюджетная баня своими руками: этапы строительства от А до Я. Фото лучших вариантов маленьких и компактных построек
- Баня на даче проект. Баня на даче: проектирование, постройка и утепление своими руками. ТОП-150 фото современных проектов, схем и чертежей
- Мини баня для дачи. Какой проект бани выбрать
- Мини баня своими руками: чертежи. Миниатюрные каркасные баньки — оптимальный выбор
- Самая простая баня своими руками. Примеры дачных бань
- Бюджетная баня на даче своими руками. Бюджетная баня своими руками — разновидности конструкций, варианты недорогих материалов для внутреннего и внешнего обустройства своими руками
Эконом баня на даче своими руками. Бюджетная баня своими руками: этапы строительства от А до Я. Фото лучших вариантов маленьких и компактных построек
Многие годами хотят построить баню, но не могут позволить себе услуги строителей. Для строительства бани не нужно тратить много денег. Ее легко и просто можно построить самим.

Эскиз бюджетной бани
Перед тем, как начинать строить баню нужно определиться ее проектом. Достаточно на листке бумаги нарисовать, что и где примерно будет находиться.

Нужно понять местонахождение канализации, как будет протекать вода, как будут проводить электропровода и так далее.

Материалы для строительства бани эконом-варианта
- Бюджетный вариант бани может быть построен из бруса. Для летней бани на дачном участке подойдет брус толщиной 10 см. Нагеля нужно устанавливать на расстоянии 1 метра. У такой бани очень много плюсов. Здесь отделывать стены не нужно. Смотрится красиво. Бревенчатая баня не боится влаги. У них большой срок службы, главное правильно ухаживать. У такой бани только один минус. И заключается он в том, что здание просаживается.
- Арболит. Такая баня строится из цемента, воды, опилок, пиломатериалов и песка. Время на строительство такой бани уйдет много. Этот материал не любит воду. Поэтому еще нужно будет отделать стены, хотя бы в моечной.
- Теплый каркас. Толщина стены летней бани может быть 10 см. Самым бюджетным утеплителем стены будет эковата. Она еще и безопасная, так как не горит.
- Газосиликат. Материал сам по себе недорогой, но еще придется потратиться на облицовку стен, ведь он впитывает в себя воду. При строительстве еще нужна будет бетономешалка.
- Кирпич. Баня из такого материала обойдется дорого и самостоятельно трудно будет построить. Точно придется нанимать специалистов для кладки стен. Ведь, если ошибиться при постройке кирпичной бани, то она может развалиться в любой момент.
Баня на даче проект. Баня на даче: проектирование, постройка и утепление своими руками. ТОП-150 фото современных проектов, схем и чертежей
Современные владельцы дачи не считают её местом для того, чтобы вкалывать на огороде. Сейчас любые фрукты, овощи можно недорого приобрести в магазине на рынке. Конечно выгоднее и приятнее, когда всё своё и ясно, что не использовались химические добавки.
Но дача теперь это больше место для отдыха на выходных. Потому, чтобы максимально его подготовить и снабдить условиями для релаксации стоит разобраться, как построить баню собственными усилиями без привлечения дорогостоящих мастеров.
Именно это строение высоко ценится, поскольку помогает отдохнуть, расслабиться и увеличить защитные силы организма. В процессе парилки из тела выходят шлаки и различные отравляющие вещества.
С чего начать строительство бани
Стоит изучить возможности разных проектов бани. Это поможет осознать доступность методов возведения на дачном участке той или иной модели. Но проблема, может, заключаться в недоступности материала.

От чего зависит выбор материала:
- Географического расположения дачи;
- Финансовых возможностей;
- Условий эксплуатации и доступности свободного пространства на даче.

Бани легко создаются из кирпича, газобетонных блоков, различных каменных материалов. Но особенно популярны каркасные бани. Хотя не менее интересны деревянные строения, поскольку их проще строить, и это значительно дешевле в сравнении с другими материалами.

Его преимущества сводятся к облегченной массе, отсутствию фундамента и великолепным эксплуатационным характеристикам.
Но брус не менее популярный и комфортный материал. Баня созданная из него обладает преимуществами дерева, но проще возводится, поскольку не нужно использовать тяжёлые брёвна.

Использование бруса сродни работе с конструктором, поскольку доступны всевозможные геометрические формы и сечения. Но, если эксплуатируется профилированный брус всё ещё проще, поскольку он снабжён пазами для закрепления элементов конструкции. Этот вариант больше других подходит для начинающего строителя.

Место на участке для бани (где лучше разместить)
Не стоит пренебрегать данным вопросом. Место для бани должно способствовать комфортной эксплуатации и соответствовать всем нормам закона.

Источник: https://postroivsesam.info/stati/nebolshaya-banya-dlya-dachi-raznovidnosti-ekonom-ban
Мини баня для дачи. Какой проект бани выбрать
Если не вдаваться в тонкости банного процесса, а остановиться только на объективных показателях, то строительство маленькой одноэтажной баньки выглядит более привлекательным со всех точек зрения:
- Небольшие затраты на составление проекта и возведение одноэтажной постройки;
- Минимальный расход дров или электроэнергии;
- Длительный срок службы одноэтажной бани.
Последний пункт для многих заказчиков, да и разработчиков типовых проектов одноэтажных бань всегда оставался загадкой, хотя ничего необычного в этом нет. Небольшое одноэтажное здание, у которого парилка или сауна занимают большую часть полезного пространства, прогревается и сушится в разы быстрее, лучше и эффективнее, чем огромные банные дома с бильярдом и бассейном.
Но комфорт остается комфортом, даже для дачи в качестве времянки нет смысла выбирать проект с минимальным уровнем комфорта. Как минимум даже в маленькой бане есть два отделения:
- Парная, на которую отводится не менее 3м2;
- Раздевалка или комната отдыха на 2-3 м2;
- Небольшой душ за перегородкой, который во многих проектах маленьких бань заменяет подвешенное деревянное ведро или бак с водой.
К сведению! В проекте летней одноэтажной бани вместо раздевалки или комнаты отдыха может использоваться крытая терраса или навес.
Это не значит, что все проекты зимних бань намного комфортабельнее и удобнее, чем летние. Зачастую сама коробка сауны строится на небольшом удалении от дома рядом с искусственным водоемом или бассейном. По проекту в одноэтажной зимней бане нет ничего, кроме очень горячей русской парилки, кирпичной каменки, занимающей половину здания, и маленького предбанника, в котором можно оставить обувь и верхнюю одежду, наброшенную на плечи.
По отзывам хозяев, все удобства находятся в доме. Процесс запаривания максимально приближен к русской бане с кратковременными посиделками в маленькой, очень жаркой парилке, окунанием в ледяную купель или обливанием водой с последующим длительным отдыхом в комфортных условиях, в доме.
Мини баня своими руками: чертежи. Миниатюрные каркасные баньки — оптимальный выбор
Мини-баня на загородном участке — прекрасный вариант для экономии площади. Правда, одновременно попариться в помещении 3х3 или 3х4 получится лишь у пары человек. Тем не менее, это самый быстрый и недорогой вариант постройки. За основу проще всего взять готовый проект каркасной бани. Можно объединить раздевалку, душевую и парилку в одном помещении. Или предусмотреть более удобный проект с отдельной парилкой, помывочной и комнатой отдыха.

Малогабаритные каркасные бани 4х3 или 4х4 — лучший выбор:
- для экономии на стройматериалах (брус 6 метров режут пополам, получается безотходная стройка);
- скоростного возведения конструкции (всего пару недель затрачивают на строительство при условии готового проекта);
- крепости готового сооружения (при закупке качественной пропитанной древесины каркасная баня простоит очень долго).
Баня до 20 кв. м — рациональное использование площади
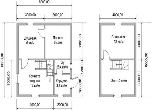
Если есть возможность построить каркасную баню 6х6, ее обязательно нужно использовать. Стандартные чертежи включают парную, душевую, комнату отдыха, небольшой коридорчик и санузел. Если разработать проект с мансардой, получите дополнительную жилплощадь на втором этаже. Ее можно использовать под гостевую, бильярдную или спальню.

Техдокументация для проектов каркасных бань площадью 20 кв. м предполагает организацию опорно-столбчатого фундамента с блоками из бетона , основание должно быть надежно гидроизолировано. На пол укладывают черновой настил (22-миллиметровая обрезная доска), затем чистовое покрытие в виде 30-миллиметровой шпунтованной доски. Антисептическую обработку и утепление 10-сантиметровой минватой нужно обеспечить в обязательном порядке.
Стены, перегородки и перекрытия делают из бруса 150х100 мм, используется также доска 100х50 мм и 100х40 мм. Вагонка после камерной обработки идеально подходит для обшивки потолка и перегородок. Десятисантиметровые плиты минеральной ваты и пароизоляция в два слоя укладываются под обшивку.

Для обустройства стропильной системы предназначена доска 100х50 мм, для обрешетки — 22 мм. Для кровельных работ лучше взять ондулин с волновым профилем Выбор оконной системы — деревянной или металлопластиковой — остается за владельцем. Для парной надо приобрести дровяную печь с баком для воды, продумать кирпичную кладку там, где будет располагаться топка.
Вот такие чертежи и планы можно использовать для возведения каркасной бани своими руками.



Индивидуальные проекты позволяют реализовать практически любые пожелания будущего владельца. Есть возможность присоединить к бане веранду или террасу. И даже в чертежи готовой документации можно вносить небольшие корректировки. Компании по разработке проектов предлагают следующий ряд услуг:
- объект под ключ — проект каркасной бани с заводской сборкой стен и перегородок, полной отделкой внутренних стен и фасадов;
- черновая отделка — облицовка или фасада, или внутренних стен;
- без облицовки — базовая сборка из щитов.
Самая простая баня своими руками. Примеры дачных бань
На фото №1 мы видим простейшую баню, напоминающую бочку Диогена. В ней можно только попариться. Помыться здесь не удастся, поскольку в строении нет канализации. Однако, при желании ее нетрудно сделать. Для этого нужно установить в углу бани стандартный душевой поддон и вывести сливную трубу в септик.

Фото №1 Построй на даче такую «баню-бочку» и парься в свое удовольствие
Важное преимущество данной конструкции – малый вес, позволяющий поставить ее на дощатой террасе.
Устройство самой простейшей бани из категории контейнерных представлено на фото №2.
Фото №2 Вариант контейнерной дачной бани
Она состоит из одного парильного отделения. Для помывки владельцу нужно пристроить навес с летним душем или дополнить помещение канализацией, а печку — баком для подогрева воды.

Фото №3
Импровизируя на тему бочкообразной бани, обратим внимание на сотовый поликарбонат. Из него можно быстро и просто собрать оригинальную конструкцию. Для того, чтобы она хорошо держала тепло, потребуется два больших листа этого материала и каркас из металла или деревянных брусков. Между ними укладывается утеплитель из минваты, толщиной 10 см.

Фото №4
Торцы строения можно сделать из досок, набив их на деревянный утепленный каркас. Поставьте такую баню где угодно: на даче, на полярной льдине или на вершине Эвереста и вам всегда будет комфортно в ее парилке (фото №5).
Фото №5 Простая баня бочкообразной формы
Небольшая русская баня, сделанная из обрезков бруса, может быть установлена на дубовые столбики. Пример подобного сооружения мы видим на фотографии №6.

Фото №6 Дубовые столбики – отличная опора для небольшой деревянной бани
Более крупные сооружения нуждаются в собственном фундаменте. Здесь возможны три варианта:
- Бутобетонная лента.
- Столбики из кирпича.
- Сваи из асбоцементных труб.
Не забывайте о том, тип фундамента влияет на выбор материала и конструктив стен. Свайные и столбчатые основания используют для установки деревянного каркаса, а также для бань из бруса или бревен (фото №7 и №8).

Фото №7 Банька из СИП панелей на винтовых сваях

Фото №8 Кирпичные столбики – оптимальный вариант для брусовой, бревенчатой и каркасной конструкции
«Лента» из бутобетона подходит для любых стен (из газосиликатных блоков, бревен и каркаса).

Фото №9
Дешевый, надежный и простой вариант бани получается по технологии под названием «глиночурка» . Для такого сооружения потребуется немного: машина дров, воз соломы и самосвал глины (фото №10).
Фото №10
Лучшая форма дровяного строения – круглая. Она избавляет от необходимости усиления кладки углов, выглядит эстетично и оригинально.
Заимствуя у птиц технологию строительства гнезд из веток и глины, можно соорудить вот такую простую и теплую баню (фото № 11).
Бюджетная баня на даче своими руками. Бюджетная баня своими руками — разновидности конструкций, варианты недорогих материалов для внутреннего и внешнего обустройства своими руками
Имея загородный участок, каждый хозяин рано или поздно задумывается над тем, чтобы возвести на нем практичные постройки. Простая бюджетная баня своими руками будет отличным решением для первых шагов по облагораживанию прилегающей территории.

Если на участке имеется бассейн или водоем, то медлить точно не стоит, традиция париться станет неотъемлемым атрибутом каждого праздничного события.

На что обратить внимание
Такая специфическая постройка, как бюджетный вариант бани должна быть построена с соблюдением некоторых правил и важных рекомендаций. На каждом проекте умные люди пытаются сэкономить средства, но в этом случае лучше несколько раз хорошенько подумать.

Большинство материалов будут поддаваться термическому воздействию, которое губительно скажется на эксплуатации дешёвых составляющих.
Экономить нужно с умом
Благоразумно использовать средства это неплохая привычка, но во многих ситуациях лучше руководствоваться здравым смыслом. Некоторые проекты бюджетных бань разрабатываются с учетом материалов, которые способны выдержать высокие температуры.

Такие нюансы стоит учитывать при закупке, не будет лишним обратить внимание на производителя и качество вещи. Для построек существует перечень разрешенных для использования составляющих, с ним нужно ознакомиться в первую очередь.

Сэкономить получится лишь в том случае, если будет проведен качественный и скрупулёзный анализ ценовой политики магазинов, которые занимаются продажей материалов.

Сравнив стоимость в нескольких точках, каждый заинтересованный человек сможет подыскать подходящий вариант для себя и своего кошелька. Красивая бюджетная баня на даче сделанная с соблюдением всех важных правил прослужит долго и принесёт только положительные эмоции от эксплуатации.

Важный совет от специалистов
Внутренне оснащение также необходимо подбирать внимательно и не спеша, система довольно сложная и потребует осознанного подхода к строительству. Дело дойдет до выбора обогревательных приборов, бюджетная печь для бани это точно не та вещь, на которой стоит экономить.

Конструкцию можно сделать собственноручно, но на это уйдет довольно долгое время, к тому же дополнительные материалы для сборки стоят немало денег. Заводские модели намного проще в обслуживании и эксплуатации, а работы по установки не создадут особых проблем.
Удешевить постройку можно
Одним из самых актуальных вопросов остается, как сэкономить и на чем, рассматривая фото бюджетной бани в изящном исполнении, с первого взгляда можно и не понять в чем выиграли ее хозяева.

Но некоторые хитрости все же есть, стоимость строительства с имеющейся информацией может существенно снизиться, а на прочность конструкции и рабочие моменты это не скажется.
В основном опытные мастера отмечают следующие варианты для рассмотрения:
- Утеплитель.
- Печь.
- Фундамент.
- Обшивка.

К каждому пункту списка лучше подходить с особой внимательностью и хорошо продумывать свои решения. Когда дело касается выбора экологически чистых и безвредных составляющих постройки нужно понимать цену возможной допущенной ошибки. Чтобы произвести сложные замеры можно обратиться к специалистам и существенно сэкономить силы и время.

Подробнее об утеплителе
Дешёвые модификации нельзя назвать бесполезными, баня бюджетный вариант своими руками будет достаточно теплой и герметичной с такими материалами. Обратить внимание при выборе конкретного изготовителя нужно на разрешение использовать такую составляющую для построек данного типа.

Из экологически чистых теплоизоляционных решений стоит отметить базальную вату и пенофол. Свойства обоих материалов довольно хорошо зарекомендовали себя, а цена будет доступна каждой среднестатистической семье.

Благодаря удобным рулонам и широкому выбору толщины изделия можно легко подобрать нужный вариант по доступной цене.

Выбор печи
Подобные конструкции будут обеспечивать теплом и уютной атмосферой внутреннее пространство помещения, создавая благоприятные условия для всех гостей. Покупать дорогостоящую печь совсем необязательно, существуют не менее продуктивные дешевые аналоги.
Конструкция без выносной топки стоит в разы дешевле, но греет достаточно хорошо при использовании меньшего количества дров. Сэкономить получится не только на строительстве, но и на дальнейшей эксплуатации, самая бюджетная баня будет приносить радость хозяевам и восторг гостям, посетившим ее.